Vendita Appartamento

Appartamento

Viale 24 Maggio, 15, Latina, Latina

Prezzo
Ottimo Affare: 54% sotto la media
96
mq
4
Locali
3
Camere
2
Bagni

Recensisci questo Immobile

Devi essere registrato per lasciare una recensione.

Accedi

Nessuna recensione ancora. Sii il primo!

Descrizione

Se stai cercando una casa già “decisa da altri”, questa non fa per te.
Se invece vuoi scegliere tu ogni dettaglio, allora fermati un attimo.

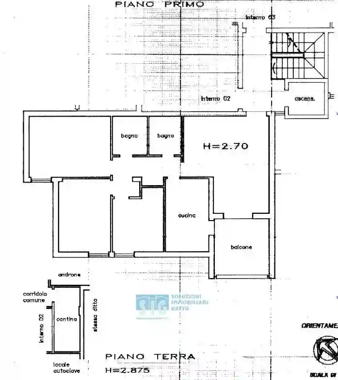
In via XXIV Maggio ti aspettano 90 mq al primo piano con ascensore, completamente da ristrutturare. Questo significa una cosa molto semplice: non paghi lavori fatti secondo gusti che non ti rappresentano. Parti da zero e costruisci la casa che hai in testa.

La distribuzione è già intelligente e ti dà una base solida su cui lavorare:

– Soggiorno ampio con accesso al balcone, perfetto da trasformare in una zona living moderna e luminosa
– Cucina separata che puoi mantenere indipendente oppure aprire per creare un open space più contemporaneo
– Due camere da letto comode, ideali per una coppia che vuole uno studio o per una famiglia con un figlio
– Due bagni, un plus raro che ti permette di ripensare gli spazi in chiave funzionale
– Balcone, uno sfogo esterno sempre prezioso nella vita quotidiana
– Ascensore, comodità concreta che incide davvero sulla qualità della vita

La metratura è quella giusta: né dispersiva né sacrificata. Hai spazio per progettare una casa attuale, efficiente e su misura per te.

Questa è la soluzione ideale se vuoi fare un acquisto intelligente oggi e creare valore nel tempo, modellando ogni ambiente secondo il tuo stile e le tue esigenze.

Se vuoi trasformare questi 90 mq nella casa che hai sempre immaginato, non rimandare: contattaci e vieni a scoprirne tutto il potenziale.Se stai cercando una casa già “decisa da altri”, questa non fa per te.
Se invece vuoi scegliere tu ogni dettaglio, allora fermati un attimo.

In via XXIV Maggio ti aspettano 90 mq al primo piano con ascensore, completamente da ristrutturare. Questo significa una cosa molto semplice: non paghi lavori fatti secondo gusti che non ti rappresentano. Parti da zero e costruisci la casa che hai in testa.

La distribuzione è già intelligente e ti dà una base solida su cui lavorare:

– Soggiorno ampio con accesso al balcone, perfetto da trasformare in una zona living moderna e luminosa
– Cucina separata che puoi mantenere indipendente oppure aprire per creare un open space più contemporaneo
– Due camere da letto comode, ideali per una coppia che vuole uno studio o per una famiglia con un figlio
– Due bagni, un plus raro che ti permette di ripensare gli spazi in chiave funzionale
– Balcone, uno sfogo esterno sempre prezioso nella vita quotidiana
– Ascensore, comodità concreta che incide davvero sulla qualità della vita

La metratura è quella giusta: né dispersiva né sacrificata. Hai spazio per progettare una casa attuale, efficiente e su misura per te.

Questa è la soluzione ideale se vuoi fare un acquisto intelligente oggi e creare valore nel tempo, modellando ogni ambiente secondo il tuo stile e le tue esigenze.

Se vuoi trasformare questi 90 mq nella casa che hai sempre immaginato, non rimandare: contattaci e vieni a scoprirne tutto il potenziale.

Caratteristiche

Piano 1
Ascensore No
Stato Da ristrutturare
Riscaldamento Autonomo, alimentato a metano

Servizi e accessori

Esposizione esterna

Posizione

Zona: Centro (Centro, Centro Storico, Nicolosi)

Referente

Gatto Soluzioni Immobiliari

Storico

Pubblicato 27 Feb 2026
Disattivato 11 Apr 2026
Sul mercato 83 giorni
ID Annuncio 127071401

Recensioni

Vedi tutte
K

Katia Pagani

4.7

Durante il processo di affitto mi sono sentita ascoltata e capita, grazie alla capacità di seguire le mie esigenze anche in orari complicati. La professionalità e la disponibilità dell’agenzia hanno r...