Vendita Appartamento

Appartamento

Corso Canalchiaro, 180, Modena, Modena

Prezzo
80
mq
2
Locali
1
Camere
1
Bagni

Recensisci questo Immobile

Devi essere registrato per lasciare una recensione.

Accedi

Nessuna recensione ancora. Sii il primo!

Descrizione

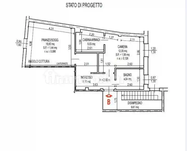
Consulenza Immobiliare Modena, propone in vendita un ampio bilocale completamente ristrutturato in C.so Canalchiaro 180. Contesto di massimo pregio con cappotto termico. La soluzione in oggetto è in corso di ristrutturazione e sarà composta da un ingresso indipendente con possibilità di posteggiare la bicicletta, scala in muratura che porta al primo piano dove troviamo un particolare soprascala luminoso adatto per un angolo studio. L'appartamento si sviluppa internamente con una sala con angolo cottura, una camera matrimoniale con cabina armadi, un ampio bagno e due comodi spazi per dispensa e lavanderia. Contesto per amanti delle abitazioni classiche del centro storico, ambienti mossi e vivibilità comoda. La cosegna è prevista per luglio 2026, capitolato di alto livello e ristrutturazione completa, possibilità di personalizzare le finiture. Classe energetica in corso di analisi ma sicuramente elevata. Le fotografie presenti nell'annuncio non rappresentano l'immobile. Visite presso i Nostri uffici e possibilità di visionare il cantiere durante la ristruttrurazione.

Caratteristiche

Piano 1
Ascensore No
Stato Ottimo / Ristrutturato
Riscaldamento Centralizzato, a radiatori, alimentato a gas

Servizi e accessori

Esposizione interna Fibra ottica Impianto tv centralizzato Infissi esterni in doppio vetro / PVC Porta blindata VideoCitofono

Posizione

Zona: Centro Storico (Centro)

Referente

Consulenza Immobiliare Modena

Storico

Pubblicato 27 Feb 2026
Disattivato 24 Apr 2026
Sul mercato 83 giorni
ID Annuncio 127073161

Recensioni

Vedi tutte
L

Liliana Murgia

5.0

Ho trovato l'ufficio perfetto per la mia attività grazie a un'agenzia immobiliare davvero competente e disponibile. Mi sono sentita seguita con tanta attenzione e professionalità durante tutta la trat...

L

Letizia Veltri

5.0

Se stai cercando un'agenzia immobiliare, ti consiglio di scegliere qualcuno che sia disponibile e trasparente. Io, in particolare, sono stata molto soddisfatta perché mi hanno seguita con molta attenz...

C

Carla Malandrino

4.7

Ho scelto questa agenzia perché conoscono molto bene il mercato immobiliare di Modena e mi hanno sempre spiegato tutto con tanta chiarezza, senza lasciarmi dubbi. Dopo anni di affitto, ormai pensavo f...

S

Susanna Calò

4.3

Durante tutto il processo mi sono sentita davvero in buone mani, l’agenzia si è dimostrata molto paziente e disponibile, rispondendo a ogni mia domanda con rapidità. Mi sono trovata subito seguita e a...