Indietro
Vendita Rustico - Casale

Rustico - Casale

Frazione Cereaglio, 3, Poirino, Torino

Prezzo
Ottimo Affare: 25% sotto la media
270
mq
5+
Locali
3
Camere
2
Bagni

Recensisci questo Immobile

Devi essere registrato per lasciare una recensione.

Accedi

Nessuna recensione ancora. Sii il primo!

Descrizione

RUSTICO

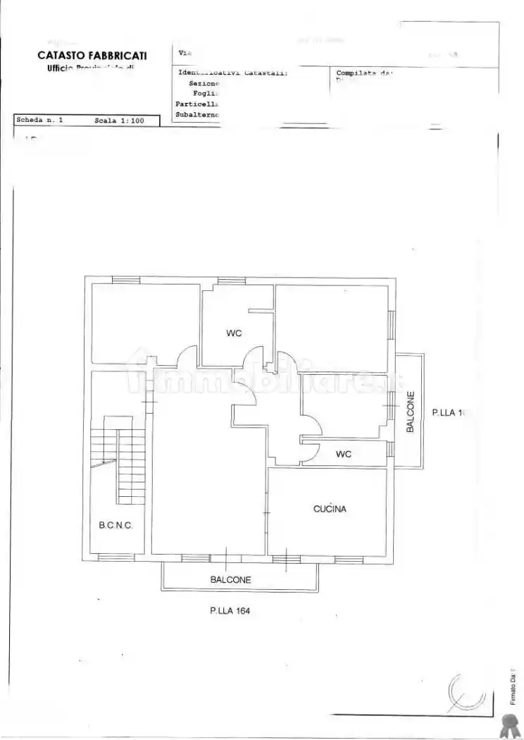
Immobile libero su 3 lati con un lato in aderenza con altro fabbricato. Abitazione su 3 livelli fuori terra ed uno entro terra tutti collegati da scala interna. Composta da:
- al piano interrato cantina;
- al piano terreno ingresso, cucina, disimpegno, sala, bagno e porticato;
- al piano primo tre camere da letto, bagno e due balconi;
- al piano sottotetto salone.

L'immobile viene venduto dal tribunale tramite asta giudiziaria e il prezzo indicato si riferisce all’offerta minima.

Per maggiori informazioni contatti un nostro consulente presso ufficio NEOVIT Consulting di Torino
Tel. 011 1937 7889 - Cell. 391 337 9881
Via Stradella 38 - Torino
Web Site www.siapeimmobiliare.it - www.neovitconsulting.it
Email neovit.torino@gmail.com
Seguici su Facebook: https://www.facebook.com/neovit.torino.9

NOI VI OFFRIAMO:
1- PRIMO APPUNTAMENTO
In ufficio un nostro consulente vi darà maggiori informazioni sull’asta immobiliare e vi aiuterà nella ricerca per soddisfare le vostre esigenze.
2- VALUTAZIONE REDDITUALE
Le competenze e l’indipendenza per garantirti una scelta completa e personalizzata, un’offerta di soluzioni finanziarie che la singola banca non può proporre, per ottenere il mutuo al 100%.
È il luogo giusto per ottenere la migliore consulenza in materia creditizia. Perché la consulenza non è tutta uguale!
Presente su tutto il territorio nazionale con una vasta reti di consulenti professionisti, vantiamo una realtà indipendente, leader in mediazione creditizia.

I vantaggi:
- Numerose soluzioni disponibili
- Consulenza personale
- Sempre e solo il tuo interesse!
La nostra offerta:
- Mutui
- Prestiti Personali
- Cessioni del Quinto

3- ASSISTENZA PER ACQUISTO IN ASTA
- Apertura pratica
- Ricerca immobile scontata rispetto al libero mercato
- Valutazione globale dell’investimento
- Banca dati aggiornata
- Prenotazione e visita dell’immobile
- Calcolo indice convenienza
- Valutazione valore di mercato
- Controlli sull’immobile ed eventuali abusi edilizi
- Preparazione documentazione asta e presentazione
- Partecipazione e assistenza in asta
- Gestione completa del post-asta
- Decreto di trasferimento e cancellazioni ipotecarie
- Ritiro e consegna delle chiavi
- Allacciamento utenze

Le caratteristiche e le foto pubblicate potrebbero non corrispondere all'immobile specifico, gli allegati saranno forniti dai nostri consulenti.

Per maggiori informazioni puoi contattare il nostro ufficio NEOVIT Consulting di Torino
Tel. 011 1937 7889 - Cell. 391 337 9881 - Via Stradella 38 - Torino
Web Site www.siapeimmobiliare.it - www.neovitconsulting.it
Email neovit.torino@gmail.com

Caratteristiche

Piano T
Ascensore No

Posizione

Referente

Affiliato Neovit Torino

Storico

Pubblicato 28 Feb 2026
Aggiornato 06 Apr 2026
Sul mercato 37 giorni
ID Annuncio 127093023

Recensioni

Vedi tutte
L

Luca Granata

5.0

Diverse agenzie in passato non sono state in grado di trovare ciò che cercavo, ma questa volta è stato diverso: ho avuto a disposizione un team davvero affidabile e disponibile. Mi hanno seguito passo...

M

Mauro Bettini

5.0

Se cercate un'agenzia immobiliare seria e trasparente, ve la consiglio vivamente. Ho trovato un'ampia scelta di immobili e sono stato seguito con molta attenzione, il personale è stato sempre disponib...

R

Raffaele Loi

4.7

Ricordo ancora il momento in cui ho trovato la casa perfetta per stare più vicino ai miei genitori anziani: l’agenzia è stata molto disponibile e ha seguito ogni mio passo con grande professionalità....

S

Silvano Borrelli

4.7

Dopo alcune esperienze passate con agenzie che sembravano più interessate alle formalità, questa volta ho trovato un team davvero concreto e disponibile. Mi hanno seguito passo passo, gestendo con com...

M

Maurizio Giordano

4.7

Stavo cercando di vendere la mia casa dopo un divorzio e devo dire che sono davvero felice di aver trovato questa agenzia. Mi hanno seguito passo passo con professionalità e grande capacità di ascolto...