Vendita Appartamento

Appartamento

Via Unità d'Italia, 104, Verona, Verona

Prezzo
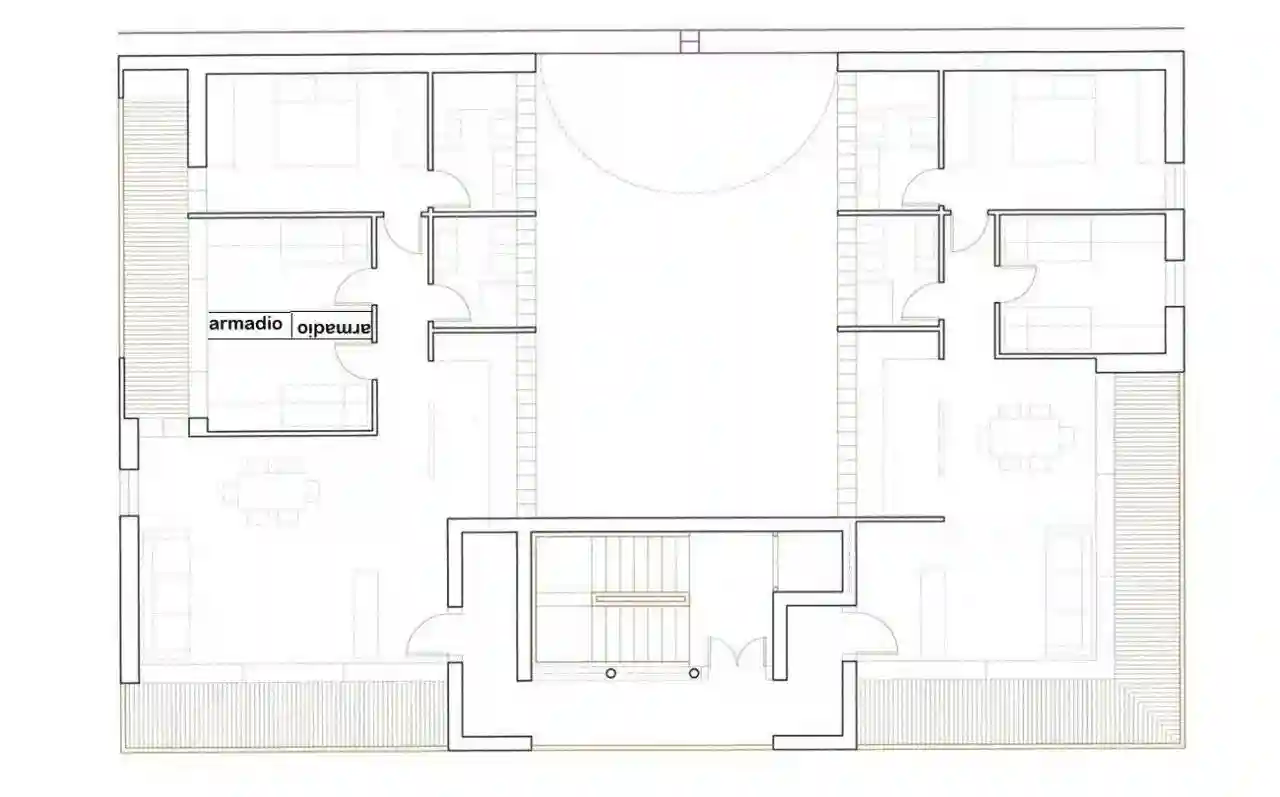
116
mq
4
Locali
3
Camere
2
Bagni

Recensisci questo Immobile

Devi essere registrato per lasciare una recensione.

Accedi

Nessuna recensione ancora. Sii il primo!

Descrizione

Nel caso dobbiate vendere il vostro immobile la nostra agenzia in collaborazione con impresa costruttrice gestirà direttamente la vendita senza stress per voi.
L'indirizzo esatto verrà fornito in sede di appuntamento in ufficio.

Scopri questo affascinante cantiere situato nel cuore della zona San Michele a Verona.
Questo luminoso immobile è ideale per famiglie o professionisti che cercano spazio e comfort in una delle aree più richieste della città.
Classe energetica a/3 edificio residenziale, si compone di un ampio soggiorno con cucina open-space, perfetto per intrattenere gli ospiti.
Le due camere da letto ed uno studio ben illuminate, offrendo un'atmosfera accogliente e rilassante.
Due bagni moderno è dotato di finiture eleganti e funzionali, con la possibilità di scelta da parte dell'utente finale.
Le spese condominiali sono contenute (solo 50 euro al mese presunte ), il che rende questa proprietà ancora più allettante. Inoltre, l'immobile beneficia di riscaldamento autonomo e aria condizionata per garantire il massimo del comfort tutto l'anno.
Nel prezzo non vi sono compresi : posto auto, garage, allacciamenti e spese di mediazione.
La posizione strategica del compendio immobiliare consente facili collegamenti con i principali servizi: scuole, supermercati e mezzi pubblici sono tutti a pochi passi.
Non perdere quest'opportunità unica!
Contatta subito la nostra agenzia per ulteriori informazioni o per prenotare un appuntamento informativo e esaustivo in agenzia

Caratteristiche

Piano 1
Ascensore Si
Stato Nuovo / In costruzione
Riscaldamento Autonomo, a pavimento, alimentato a pompa di calore

Servizi e accessori

Cancello elettrico Esposizione esterna Fibra ottica Impianto di allarme Impianto tv con parabola satellitare Infissi esterni in triplo vetro / PVC Porta blindata VideoCitofono

Posizione

Zona: San Michele Extra (San Michele Extra, Castiglione)

Referente

UNYCASA Verona San Michele

Storico

Pubblicato 28 Feb 2026
Disattivato 08 Mar 2026
Sul mercato 82 giorni
ID Annuncio 127098971

Recensioni

Vedi tutte
B

Barbara Godano

4.7

Ho deciso di rivolgermi a questa agenzia perché mi hanno colpito la loro onestà nelle valutazioni e la velocità con cui sono riusciti a trovare l’acquirente. Sono stata davvero aiutata e seguita passo...

V

Veronica Gabrielli

4.3

Ricordo ancora il momento in cui mi hanno mostrato il terreno e subito ho sentito che era la scelta giusta. La gestione burocratica è stata impeccabile, tutto è stato spiegato con chiarezza e senza co...

V

Vanessa Ricci

4.0

Ho scelto questa agenzia perché cercavo un accompagnamento professionale e affidabile nel mio trasferimento vicino ai miei genitori anziani. Mi ha colpito subito la loro tempestività nelle risposte e...