Vendita Appartamento

Appartamento

Via Giuseppe Mazzini, 18, Bovisio-Masciago, Monza e Brianza

Prezzo
95
mq
2
Locali
1
Camere
1
Bagni

Recensisci questo Immobile

Devi essere registrato per lasciare una recensione.

Accedi

Nessuna recensione ancora. Sii il primo!

Descrizione

RIF: Divina Servizi Immobiliari di Varedo, via Umberto I 103, 0362-1976454 o 380-7433743 e-mail varedo@immobiliaredivina.it

Nel cuore di Bovisio Masciago, in una caratteristica corte dal sapore autentico, sta nascendo una soluzione abitativa capace di unire tradizione e comfort moderno. Proponiamo in vendita tre unità abitative in fase di completa ristrutturazione, ideali per chi desidera una soluzione moderna inserita in un contesto dal sapore tradizionale, riservato e senza spese condominiali, dove il fascino della corte lombarda incontra uno stile moderno e di nuova generazione con classe energetica A+ la cui consegna è prevista per fine 2026.
Le unità immobiliari sono in posizione strategica in pieno centro cittadino a pochi passi dalla stazione, scuole e servizi principali.
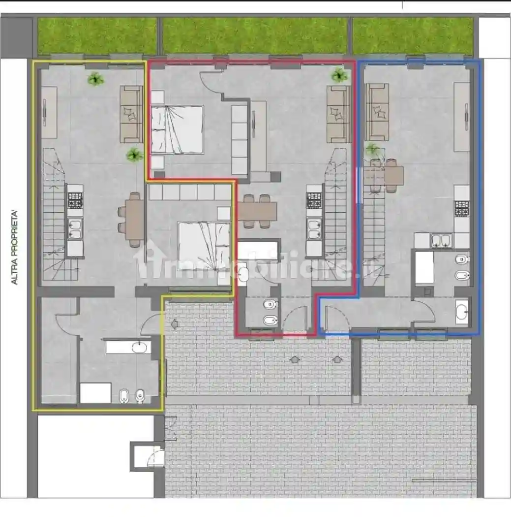
Le soluzioni disponibili sono: due/tre locali progettati per offrire ambienti accoglienti, funzionali e personalizzabili ma il vero valore aggiunto sono le taverne collegate, perfette come area relax, locale hobby, studio o seconda zona living e i sottotetti sfruttabili con possibilità di creare ulteriore camera.
La ristrutturazione prevede:
° spazi funzionali e ben distribuii
° Finiture moderne con possibilità di personalizzazione
° Riscaldamento a pavimento
° Impianti nuovi certificati
° predisposizione impianto di raffrescamento
° predisposizione impianto d'allarme
° Rinforzi strutturali
° Serramenti in pvc a risparmio energetico e persiane oscuranti
° Porta blindata
° Videocitofono
Disponibilità limitata solo tre unità dal carattere unico in una zona sempre richiesta.
Per maggiori informazioni, prezzi, planimetrie e dettagli sul capitolato contattaci senza impegno!

La presente scheda non costituisce forma di contratto, le informazioni qui contenute sono da ritenersi del tutto indicative e non potranno essere utilizzate come parte integrante in un eventuale contratto di vendita o locazione della proprietà. La presente non vincola in alcun modo la società.

Vuoi vendere la tua casa? Possiamo effettuare delle precise valutazioni completamente gratuite.
Nelle nostre agenzie troverai tante proposte e degli agenti a tua completa disposizione per aiutarti a trovare la soluzione migliore.

Caratteristiche

Ascensore No
Stato Nuovo / In costruzione
Riscaldamento Autonomo, a pavimento, alimentazione elettrica

Servizi e accessori

Cancello elettrico Esposizione doppia Impianto di allarme Impianto tv singolo Infissi esterni in doppio vetro / PVC Mansarda Porta blindata VideoCitofono

Posizione

Referente

Divina Servizi Immobiliari

Storico

Pubblicato 27 Feb 2026
Aggiornato 30 May 2026
Sul mercato 92 giorni
ID Annuncio 127107583

Recensioni

Vedi tutte
K

Katia Zanella

4.3

Dopo aver avuto molte brutte esperienze con altre agenzie, posso dire che questa volta è andata decisamente meglio. Mi sono trovata davvero bene: hanno dimostrato tanta cortesia e pazienza, aiutandomi...