Vendita Appartamento

Appartamento

Via Lago Maggiore, Montebello Vicentino, Vicenza

Prezzo
150
mq
3
Locali
2
Camere
2
Bagni

Recensisci questo Immobile

Devi essere registrato per lasciare una recensione.

Accedi

Nessuna recensione ancora. Sii il primo!

Descrizione

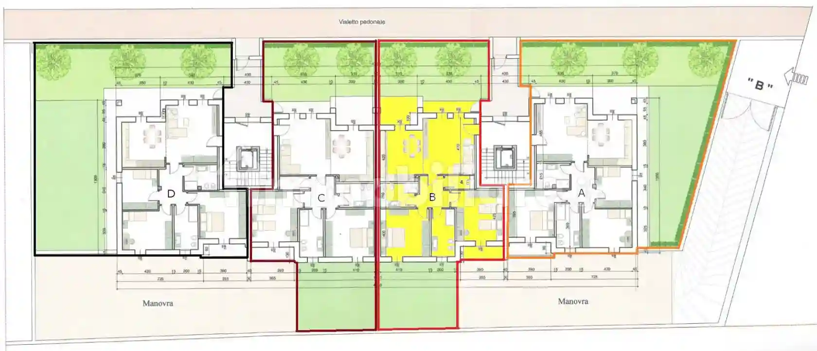
Prestigiosa Abitazione al Piano Terra con Giardino Privato – Classe A4

In un contesto residenziale moderno e altamente efficiente, proponiamo in vendita una nuova abitazione al piano terra, attualmente in costruzione, progettata per offrire comfort, tecnologia e sostenibilità ai massimi livelli. Una soluzione ideale per chi desidera spazi ampi, indipendenza e un elevato standard abitativo.

Caratteristiche principali

* Superficie commerciale: 163,30 mq. Ambienti generosi, luminosi e ben distribuiti, pensati per garantire funzionalità e qualità della vita.
* Due camere da letto. Spazi versatili e confortevoli, perfetti per famiglie o per chi necessita di una stanza studio.
* Doppi servizi. Moderni e ben organizzati, progettati per rispondere alle esigenze quotidiane.
* Giardino esclusivo di 55 mq. Un’area verde privata, ideale per momenti di relax, giochi all’aperto o per chi ama vivere gli spazi esterni.
* Portico di 8,25 mq. Perfetto come estensione della zona giorno, ideale per pranzi e cene all’aperto.
* Poggiolo di 4,20 mq. Un ulteriore spazio esterno che aggiunge comfort e praticità.
* Terrazza abitabile di 39,33 mq
* Classe energetica A4. Il massimo dell’efficienza energetica, grazie a materiali e tecnologie costruttive di ultima generazione.
* Pompa di calore e impianto fotovoltaico. Soluzioni avanzate per ridurre i consumi, aumentare il comfort e garantire un’abitazione sostenibile.
* Ascensore. Accesso comodo e agevole, ideale per tutte le età.
* Garage di 37,63 mq. Ampio e funzionale, adatto per due auto e con spazio aggiuntivo per deposito o attività hobby.

Un’opportunità unica

Questa abitazione rappresenta una soluzione completa e moderna, perfetta per chi cerca un immobile nuovo, efficiente e personalizzabile nelle finiture. Il giardino privato, gli spazi generosi e le tecnologie avanzate rendono questa proposta ideale per chi desidera vivere in un ambiente confortevole, sicuro e orientato al futuro.

Caratteristiche

Piano T
Ascensore Si
Stato Nuovo / In costruzione
Riscaldamento Autonomo

Servizi e accessori

Cancello elettrico Esposizione interna Impianto di allarme Impianto tv singolo Infissi esterni in doppio vetro / PVC Porta blindata VideoCitofono

Posizione

Referente

Gesticasa di Montebello Vicentino

Storico

Pubblicato 28 Feb 2026
Aggiornato 26 May 2026
Sul mercato 87 giorni
ID Annuncio 127115413

Recensioni

Vedi tutte
M

Manuela Carmignani

5.0

Mi ha colpito la rapidità con cui hanno risposto alle mie richieste, sempre puntuali negli appuntamenti. Sono stata seguita con attenzione e professionalità, trovando l’appartamento perfetto per la mi...

G

Giuseppe Zanetti

4.7

Ho finalmente trovato la casa giusta a Montebello Vicentino dopo anni di affitto e sono davvero felice. L'agenzia si è dimostrata molto seria e attenta ai dettagli, seguendomi passo passo nel percorso...

G

Gloria Giordano

4.7

Ho scelto questa agenzia perché mi aveva colpito la loro onestà nelle valutazioni e il modo professionale con cui gestiscono ogni fase della trattativa. Sono stata seguita passo passo con molta attenz...

M

Miriam Malandrino

4.3

Durante il processo mi sono sentita subito seguita e presa in seria considerazione, il che mi ha messo a mio agio. Sono stata molto soddisfatta della loro conoscenza delle normative e della capacità d...