Vendita Appartamento

Appartamento

Piazza della Repubblica, 10, Castelfranco Emilia, Modena

Prezzo
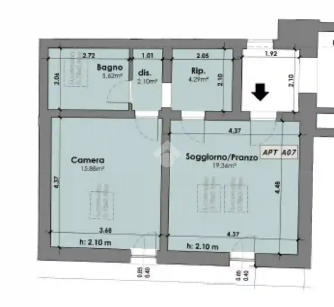
61
mq
2
Locali
1
Camere
1
Bagni

Recensisci questo Immobile

Devi essere registrato per lasciare una recensione.

Accedi

Nessuna recensione ancora. Sii il primo!

Descrizione

L'agenzia affiliata Tecnocasa di Piumazzo, frazione di Modena, propone in vendita a Piumazzo, in pieno centro e comodo a tutti i servizi del Paese, Nuovo intervento edilizio e di risanamento conservativo in Classe A.
L’intervento tratta due fabbricati sviluppati su tre piani fuori terra e sarà caratterizzato da diverse tipologie, ciascuna con particolari e peculiari unici.
Gli immobili potranno essere personalizzati in tutte le finiture interne.
Dotati di riscaldamento a pavimento, predisposizione dell’impianto di raffrescamento autonomo , impianto fotovoltaico, infissi con scuri in legno, ventilazione meccanica e tutte le finiture di un immobile in classe A e di impronta moderna.
Ogni unità abitativa è dotata di un’autorimessa di proprietaà.
Per fissare una visita o per maggiori informazioni potete contattarci via mail a Potete trovarci anche su WHATSAPP al numero 3207694222 e vieni a scoprire l’intera progettazione!

Se decidi di vendere il TUO immobile con NOI, in esclusiva, tra i nostri servizi offriamo GRATUITAMENTE:

Valutazione del reale prezzo di mercato con TecnoValore: software esclusivo in dotazione alle agenzie del GRUPPO che ci supporta nella definizione del prezzo degli immobili, grazie all'applicazione di metodologie statistiche che elaborano i dati su compravendite effettuate nella zona di interesse.

Caratteristiche

Piano 2
Ascensore No
Stato Nuovo / In costruzione
Riscaldamento Autonomo, a pavimento, alimentato a solare

Posizione

Referente

Affiliato Tecnocasa: VALEDIPIU' SRL

Storico

Pubblicato 01 Mar 2026
Aggiornato 26 May 2026
Sul mercato 87 giorni
ID Annuncio 127125349

Recensioni

Vedi tutte
R

Raffaele Cappelli

4.7

Durante tutto il processo mi sono sentito davvero supportato e accolto, come se stessi parlando con un amico di fiducia. La cortesia e la capacità di ascolto dell'agente sono state incredibili, mi han...

C

Camilla Natale

4.7

Durante tutto il processo mi sono sentita davvero supportata e ascoltata, ciò ha reso la vendita del locale commerciale molto più semplice e senza stress. Sono stata seguita passo passo, con attenzion...

S

Sonia Piras

4.3

Ho scelto questa agenzia perché mi ha colpito subito la loro conoscenza delle normative e l’attenzione alle mie esigenze. Mi sono sentita seguita passo passo, sempre aiutata e ascoltata nella ricerca...

P

Pina Rizzi

4.3

Sono stata davvero colpita dalla cortesia e dall’attenzione che mi hanno dedicato durante tutta la vendita del mio appartamento di famiglia. Mi sono sentita seguita passo dopo passo, con tanta pazienz...