Vendita Appartamento

Appartamento

Via Alcide De Gasperi, 19, Belvì, Nuoro

Prezzo
90
mq
3
Locali
2
Camere
1
Bagni

Recensisci questo Immobile

Devi essere registrato per lasciare una recensione.

Accedi

Nessuna recensione ancora. Sii il primo!

Descrizione

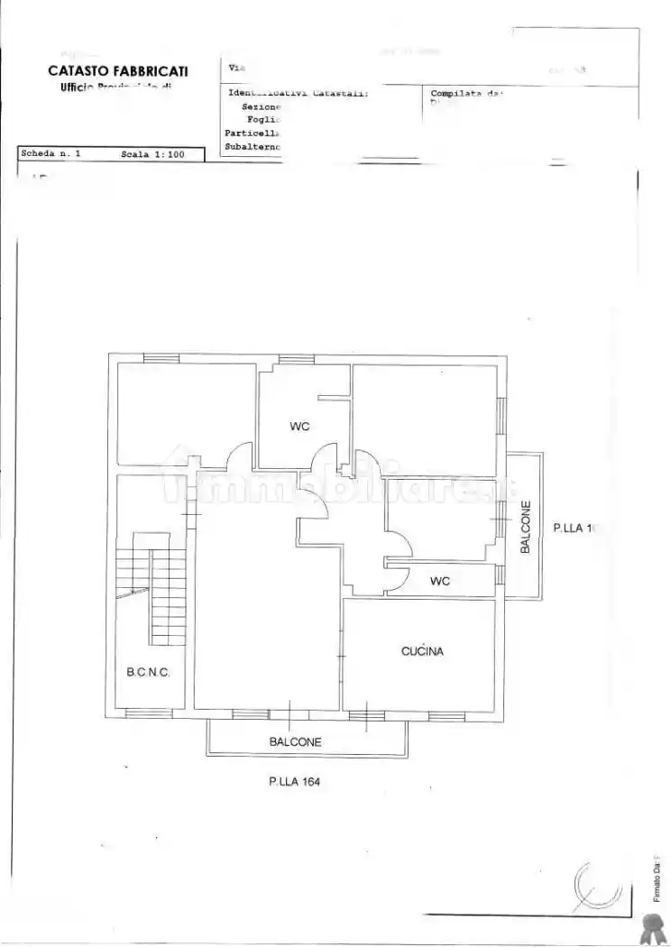
Proponiamo in vendita un ampio trilocale ,con mansarda e un garage /cantina .L' immobile si compone al piano terra di 2 camere da letto ,soggiorno ,cucina abitabile ,bagno .Al piano secondo troviamo ,sempre facente parte della proprietà ,una piccola mansarda composta da camera, cucina bagno.
Gli infissi sono nuovi e la cucina è completamente arredata.

Caratteristiche

Piano T
Ascensore No
Stato Buono / Abitabile
Riscaldamento Autonomo, a stufa, alimentato a pellet

Servizi e accessori

Caminetto Esposizione esterna Impianto tv singolo Infissi esterni in vetro / PVC Mansarda Porta blindata

Posizione

Referente

Stefano Petrangeli

Storico

Pubblicato 02 Mar 2026
Aggiornato 20 May 2026
Sul mercato 80 giorni
ID Annuncio 127136873

Recensioni

Vedi tutte
E

Eva Terranova

4.7

Ho trovato il terreno perfetto per costruire e sono felice del risultato ottenuto. Mi sono affidata a un’agenzia molto professionale, che ha gestito tutto con grande affidabilità e senza stress. Sono...