Vendita Appartamento

Appartamento

Via Luigi Maino, 23, Busto Arsizio, Varese

Prezzo
90
mq
3
Locali
2
Camere
2
Bagni

Recensisci questo Immobile

Devi essere registrato per lasciare una recensione.

Accedi

Nessuna recensione ancora. Sii il primo!

Descrizione

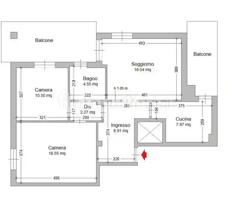
TRILOCALE RISTRUTTURATO CON TERRAZZO E BOX
Busto Arsizio

-In zona residenziale tranquilla e ben abitata, a pochi passi dal centro cittadino e da tutti i principali servizi — con entrambe le stazioni ferroviarie comodamente raggiungibili a piedi — proponiamo in vendita comodo trilocale di 90 mq catastali, situato al primo piano di un curato contesto condominiale servito da ascensore.

-COMPLETAMENTE RISTRUTTURATO NEL 2026, l’appartamento si presenta in condizioni pari al nuovo, con finiture moderne e impianti aggiornati, pronto per essere abitato senza alcun intervento.

-Distribuzione degli spazi

L’immobile è composto da:

Ampio ingresso accogliente

Luminoso soggiorno con affaccio su terrazzino vivibile, ideale per momenti di relax all’aperto

Cucina separata e abitabile con accesso a un ulteriore ampio balcone

Due camere da letto spaziose e ben distribuite

Bagno finestrato completamente rinnovato, possibilità di creare 2 bagni secondo l'esigenza del cliente.

L’abitazione è dotata di impianto di climatizzazione, garantendo comfort in ogni stagione.

-Riscaldamento centralizzato con termovalvole, con gestione ottimizzata dei consumi e costi compresi nelle spese condominiali.

-Completano la proprietà una cantina e un box auto di proprietà.

Una soluzione ideale per chi desidera vivere in un appartamento moderno, funzionale e in posizione strategica, senza rinunciare alla tranquillità.

Caratteristiche

Piano 1
Ascensore Si
Stato Ottimo / Ristrutturato
Riscaldamento Centralizzato

Servizi e accessori

Cucina Infissi esterni in doppio vetro / legno

Posizione

Zona: Ospedale (Ospedale, Beata Giuliana)

Agenzia Immobiliare

Storico

Pubblicato 03 Mar 2026
Aggiornato 21 May 2026
Sul mercato 80 giorni
ID Annuncio 127149233