Vendita Casa indipendente

Casa indipendente

corso ruggero I, 65, San Giuseppe Jato, Palermo

Prezzo
Ottimo Affare: 69% sotto la media
200
mq
4
Locali
4
Camere
2
Bagni

Recensisci questo Immobile

Devi essere registrato per lasciare una recensione.

Accedi

Nessuna recensione ancora. Sii il primo!

Descrizione

SAN GIUSEPPE JATO_ CORSO RUGGERO I _ Nel cuore del centro storico di San Giuseppe Jato, proponiamo in vendita una palazzina indipendente risalente al 1890, un immobile ricco di fascino e storia che rappresenta una vera opportunità nel panorama immobiliare locale.

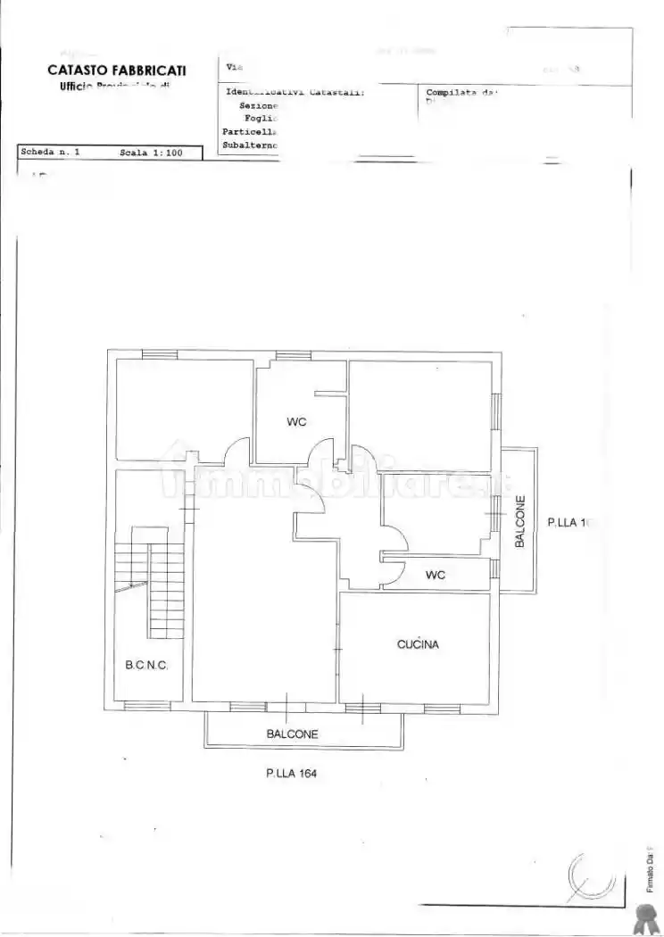
La proprietà, libera al rogito, si sviluppa su due livelli per una superficie complessiva di 200 m², di cui 190 m² calpestabili. Gli spazi interni sono ampi e ben distribuiti: 4 locali, 4 camere da letto e 2 bagni, una configurazione ideale sia per una famiglia numerosa sia per chi desidera realizzare una residenza di charme, una casa vacanze o un investimento a reddito.

L'immobile si presenta da ristrutturare, offrendo così la possibilità di personalizzare ogni ambiente secondo il proprio gusto, valorizzando le caratteristiche originarie della costruzione di fine '800 e trasformandola in un'abitazione unica, dal grande carattere e dal forte impatto estetico.

La posizione è uno dei suoi maggiori punti di forza: San Giuseppe Jato è un borgo autentico della Sicilia occidentale, immerso nella splendida Valle dello Jato, un territorio ricco di paesaggi collinari, natura incontaminata, tradizioni e testimonianze storiche che risalgono all'epoca greca. Il paese offre tutti i principali servizi, un'atmosfera tranquilla e genuina, ed è strategicamente collegato a Palermo, raggiungibile in circa 20 minuti, rendendolo perfetto per chi cerca la quiete senza rinunciare alla comodità.

Questa palazzina rappresenta una rara occasione per chi desidera investire in un immobile dal grande potenziale, in una zona in crescita e dal forte valore storico e culturale.

E' POSSIBILE VISIONARE L'IMMOBILE TUTTI I GIORNI PREVIO APPUNTAMENTO TELEFONICO

Caratteristiche

Ascensore No
Stato Da ristrutturare

Servizi e accessori

Impianto tv centralizzato Mansarda

Posizione

Referente

RE/MAX Master Home

Storico

Pubblicato 04 Mar 2026
Aggiornato 20 May 2026
Sul mercato 78 giorni
ID Annuncio 127153029

Recensioni

Vedi tutte
N

Nicola Amato

5.0

Ricordo ancora il momento in cui ho visto l'appartamento vista mare, tutto perfettamente curato nei dettagli e con una vista mozzafiato che mi ha lasciato senza parole. L'agenzia mi ha seguito passo d...

A

Andrea Cavalli

5.0

La tranquillità di una zona residenziale e il cortese accompagnamento che ho ricevuto mi hanno colpito subito. Ho trovato la casa perfetta per il mio nuovo inizio dopo la pensione, grazie alla serietà...

A

Amedeo Rizzi

4.0

Prima di questa esperienza, avevo sempre trovato agenzie un po' lente e poco disponibili, ma questa volta è stato diverso. Sono stato seguito con rapidità e tempestività, e mi hanno aiutato a trovare...