Affitto Palazzo - Edificio

Palazzo - Edificio

CIRCONVALLAZIONE, 52, Savignano sul Rubicone, Forli Cesena

Prezzo /mese
Ottimo Affare: 34% sotto la media
45
mq
1
Bagni

Recensisci questo Immobile

Devi essere registrato per lasciare una recensione.

Accedi

Nessuna recensione ancora. Sii il primo!

Descrizione

PRONTO, PRATICO E FUNZIONALE
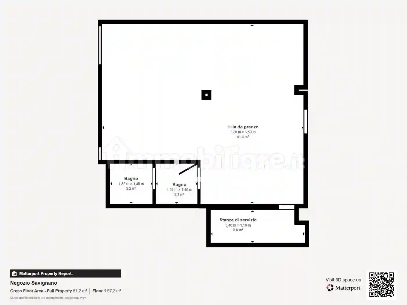
In posizione strategica a Savignano sul Rubicone, al piano terra di un complesso residenziale di recente costruzione, siamo lieti di proporre una soluzione in affitto di circa 45 mq, dotato di bagno e pratico ripostiglio.
La soluzione si sviluppa tutta su un piano ed ha una distribuzione degli spazi molto semplice in pianta quadrata.
L'immobile, grazie alla presenza di grandi vetrine gode di tanta luminosità e l'ubicazione al piano terra lo rende funzionale a diversi utilizzi.
per informazioni o visite chiama:
ANDREA 3335344442
O invia una mail all'indirizzo: a.calabro@romagnacase.it

Caratteristiche

Ascensore No

Servizi e accessori

Esposizione interna Infissi esterni in doppio vetro / PVC Porta blindata

Posizione

Referente

ROMAGNA CASE Savignano Sul Rubicone.

Storico

Pubblicato 04 Mar 2026
Aggiornato 04 Apr 2026
Sul mercato 32 giorni
ID Annuncio 127155827