Vendita Appartamento

Appartamento

via della Vittoria, 17, Vaprio d'Adda, Milano

Prezzo
Ottimo Affare: 45% sotto la media
192
mq
3
Locali
2
Camere
2
Bagni

Recensisci questo Immobile

Devi essere registrato per lasciare una recensione.

Accedi

Nessuna recensione ancora. Sii il primo!

Descrizione

In pieno centro paese, in posizione comoda con ospedale, scuole e tutti i principali servizi, proponiamo in vendita ampio appartamento di circa 140 mq, caratterizzato da spazi generosi e ben distribuiti.

L’immobile si compone di un luminoso soggiorno, una cucina abitabile con balconcino, una camera matrimoniale, una cameretta, un bagno finestrato e una pratica lavanderia, offrendo ambienti ideali per una famiglia o per chi desidera comfort e funzionalità.

Fiore all’occhiello della proprietà è l’ampio terrazzo panoramico di circa 150 mq, situato al piano superiore e accessibile tramite scala condominiale: uno spazio esclusivo perfetto per vivere momenti di relax all’aperto ed organizzare cene con amici.

Completano la soluzione una cantina al piano interrato inclusa nel prezzo e la possibilità di acquistare un box auto singolo.

Alla IMMOBILIARE DUEA troverai un team giovane, dinamico e appassionato.
Laura e Jasmine sono sempre pronte ad ascoltarti e a guidarti in ogni fase della compravendita o locazione, mentre Andrea, il titolare, saprà accompagnarti nella scelta della casa dei tuoi sogni.

Siamo associati F.I.A.I.P., la principale Federazione Italiana di Agenti Immobiliari Professionali. Dal 2019 utilizziamo il formulario ufficiale UNA FIAIP, garanzia di trasparenza e tutela per ogni proposta di acquisto, incarico o locazione.

La nostra presenza costante sul territorio ci ha permesso di costruire una rete solida di collaborazioni con notai, consulenti bancari, architetti, geometri e imprese edili, per offrirti un servizio completo e altamente competente.

Chiedi a chi già ci ha scelto!
La tua nuova casa ti aspetta, e noi siamo pronti ad accompagnarti passo dopo passo.

Caratteristiche

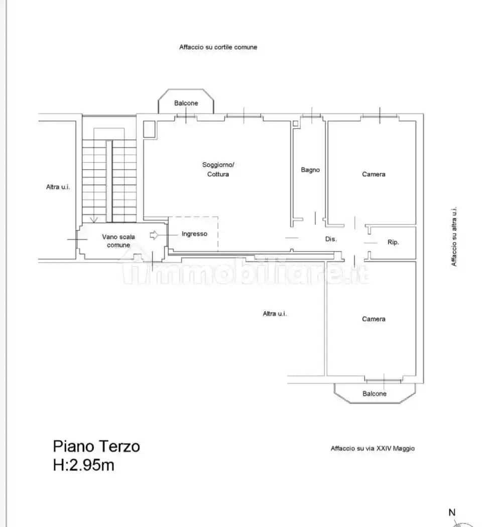
Piano 2
Ascensore Si
Stato Buono / Abitabile
Riscaldamento Autonomo, a radiatori, alimentato a metano

Servizi e accessori

Cancello elettrico Esposizione interna Infissi esterni in doppio vetro / legno Porta blindata

Posizione

Referente

Immobiliare Duea

Storico

Pubblicato 03 Mar 2026
Disattivato 19 Mar 2026
Sul mercato 79 giorni
ID Annuncio 127159391

Recensioni

Vedi tutte
S

Silvano Sanfilippo

5.0

Ricordo ancora il momento in cui ho trovato finalmente la casa dei miei sogni grazie all'aiuto di questa agenzia. Durante tutta la trattativa sono stato seguito passo passo, e grazie alla loro conosce...

E

Eva Carlini

4.7

Stavo cercando un’agenzia che mi aiutasse a vendere casa in modo rapido e senza stress, e ho trovato quella giusta a Vaprio d’Adda. Sono stata molto soddisfatta della loro tempestività nelle risposte...

S

Silvia Fiorentino

4.7

Se state cercando un’agenzia affidabile, ve lo consiglio caldamente: trovano sempre il modo di semplificarvi le cose. Sono stata molto soddisfatta del supporto che ho ricevuto nella vendita del mio ap...