Indietro
Vendita Villetta a schiera

Villetta a schiera

Via Roma, Binago, Como

Prezzo
154
mq
4
Locali
3
Camere
2
Bagni

Recensisci questo Immobile

Devi essere registrato per lasciare una recensione.

Accedi

Nessuna recensione ancora. Sii il primo!

Descrizione

Binago vicinanze, Comune di Beregazzo con Figliaro vendesi nuova villetta di prossima costruzione in zona residenziale vicino ai servizi primari composta da:
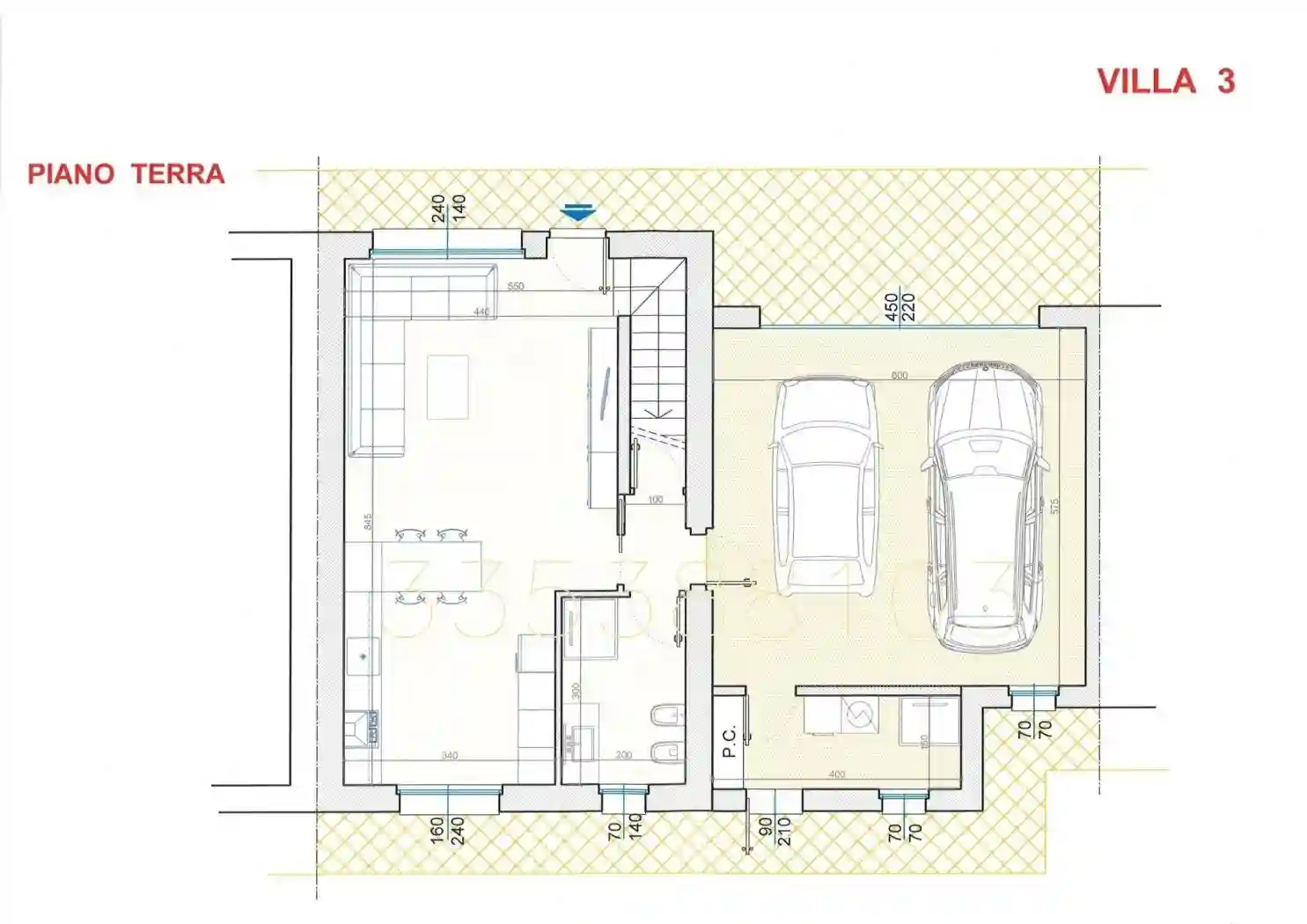
piano terra ingresso soggiorno luminoso, cucina abitabile a vista (separabile), disimpegno, bagno, doppio box in larghezza (due auto affiancate indipendenti) e locale / tecnico lavanderia
piano primo disimpegno, camera matrimoniale con balcone, bagno, 2 camere dotate di balcone
ingresso pedonale e carrabile indipendente su strada privata di accesso a più unità, zona verde e tranquilla, vicinanze a piccolo parco e servizi di trasporto, a 2 minuti dalle scuole ed asilo.
consegna inizio 2027, personalizzabile nella disposizione e finiture interne. Classe A .
Per informazioni ed appuntamenti geom. Falzone tel. 335 388 103

Caratteristiche

Ascensore No
Stato Nuovo / In costruzione
Riscaldamento Autonomo, a pavimento, alimentato a pompa di calore

Servizi e accessori

Esposizione doppia Fibra ottica Impianto tv singolo Infissi esterni in triplo vetro / PVC VideoCitofono

Posizione

Referente

Falzone servizi immobiliari

Storico

Pubblicato 03 Mar 2026
Aggiornato 21 May 2026
Sul mercato 79 giorni
ID Annuncio 127159563

Recensioni

Vedi tutte
V

Vincenzo De Blasi

5.0

Dopo le esperienze precedenti con altre agenzie, posso dire che questa a Villa Guardia è stata una scoperta fantastica. Sono stato molto colpito dalla tempestività nelle risposte e dall’attenzione dur...

A

Aurora Mazzola

4.7

Dopo esperienze precedenti con altre agenzie, posso dire che questa volta sono stata davvero fortunata. Mi hanno seguita passo dopo passo nella ricerca di un appartamento più grande per la mia famigli...

R

Rosa Capra

4.3

Prima di incontrare questa agenzia, avevo avuto esperienze con altre che mi avevano lasciato insoddisfatta, ma qui è stata tutta un'altra storia. Mi sono trovata subito seguita con professionalità e a...

S

Sandra Casella

4.3

Durante tutto il processo mi sono sentita davvero supportata e ascoltata, il team è stato sempre disponibile e molto cortese. Grazie alla loro tempestività nelle risposte, sono riuscita a trovare l’ap...

S

Salvatore Cannavaro

4.3

Durante tutto il processo mi sono sentito molto rassicurato e seguito con grande professionalità. Sono grato per la serietà e la trasparenza dimostrate, che hanno reso la vendita dell’appartamento di...