Vendita Villa

Villa

Viale Trieste, 13, Malnate, Varese

Prezzo
Ottimo Affare: 41% sotto la media
180
mq
5+
Locali
2
Camere
3
Bagni

Recensisci questo Immobile

Devi essere registrato per lasciare una recensione.

Accedi

Nessuna recensione ancora. Sii il primo!

Descrizione

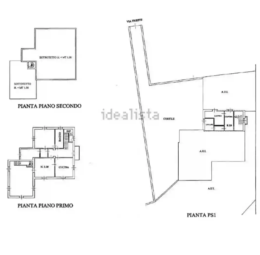
A due passi dal centro di Malnate, in zona tranquilla e comoda con tutti i servizi, tra cui ferrovia, scuole e negozi, proponiamo in vendita un'OCCASIONE IMPERDIBILE: porzione di villa bifamiliare di ben 180mq disposta su tre livelli, con ben due box auto doppi di oltre 78mq, due portici e giardino di proprietà di oltre 500mq. A piano terra trovano spazio ingresso, vani accessori e locale lavanderia, a piano primo si sviluppa l'appartamento padronale composto da: cucina, soggiorno, due camere, studio, bagno, ripostiglio e balcone. Da scala interna si accede al sottotetto sito al piano secondo.
Punti di forza:
- il prezzo, SENZA PARAGONI €200000
- posizione comoda
- ampi spazi sfruttabili ed abitabili
- box auto di grande metratura, ben 78mq, adatti ad ospitare 4 auto
- doppio ingresso: pedonale da via Trieste e pedonale e carraio da via Arnaldo de Mohr
- finanziabile al 100%
Un'occasione da non perdere.
Possibilità di ricavare 4 camere.
Chiamaci per prenotare la tua visita.

Caratteristiche

Stato Buono / Abitabile
Riscaldamento Autonomo, a radiatori, alimentato a metano

Servizi e accessori

Impianto tv singolo Infissi esterni in triplo vetro / legno

Posizione

Referente

Edil Consulting S.r.l.s.

Storico

Pubblicato 03 Mar 2026
Disattivato 19 Mar 2026
Sul mercato 34 giorni
ID Annuncio 127162803

Recensioni

Vedi tutte
M

Maria Passeri

4.3

Durante tutto il processo mi sono sentita davvero supportata e rassicurata, grazie alla professionalità e alla disponibilità del team. Mi sono trovata subito a mio agio e hanno seguito ogni mio passo...