Indietro
Vendita Casa indipendente

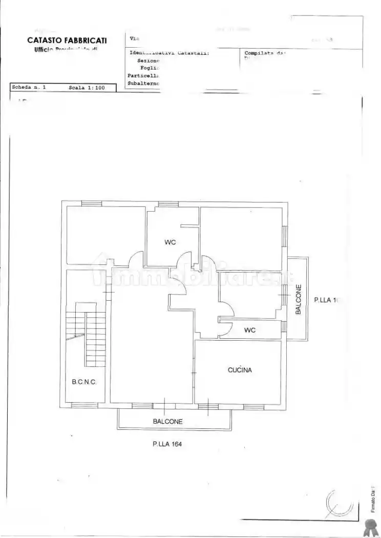
Casa indipendente

Via Claudio Monteverdi, 2, Pineto, Teramo

Prezzo
Buon Prezzo: 23% sotto la media
190
mq
3
Locali
3
Camere
1
Bagni

Recensisci questo Immobile

Devi essere registrato per lasciare una recensione.

Accedi

Nessuna recensione ancora. Sii il primo!

Descrizione

Immobile all'asta ubicato in Borgo S. Maria (TE), Via Monteverdi 2, il 06/05/2026

abitazione indipendente

La nostra Società Aste Esecuzioni e Fallimenti garantisce consulenza e assistenza alle vendite per i Professionisti ed i partecipanti.
Tutto ciò è attuato secondo un’assistenza multilivello che si articola attraverso:
-Impiego di risorse umani quale Personale qualificato in grado di fornire assistenza informatica, legale e organizzativa nella gestione della vendita
-Sala d’asta, uffici e punti informativi in cui viene fornita completa assistenza per la predisposizione della documentazione da allegare all’offerta telematica fino alle informazioni dettagliate sulla vendita specifica.

In secondo luogo, la nostra Società Aste Esecuzioni e Fallimenti effettua:

- Studio della perizia e della documentazione
- Accertamenti catastali per eventuali abusi edilizi
- Disbrigo Pratiche per Eventuale Sanatoria
- Accompagnamento Visita Immobile
- Disbrigo pratiche per la partecipazione alle vendite senza incanto, sincrone telematiche, sincrone miste ed asincrone
- Rilascio A. P. E. (attestato prestazione energetica)
- Rilascio del decreto di trasferimento in tempi brevi
- Assistenza per il versamento del Saldo Prezzo
- Compilazione F24 per Tasse
- Assistenza alla Consegna Immobile.

Il presente annuncio è volto alla promozione di servizi tecnico-giuridici e di accompagnamento alla visita e non costituisce in alcun modo pubblicità volta alla vendita dell'immobile o alla sua intermediazione.
Il servizio offerto, aggiuntivo e di natura consulenziale, non osta alla libera e gratuita partecipazione all'asta così come previsto dalla Legge.

Caratteristiche

Piano T
Stato Buono / Abitabile

Posizione

Referente

Aste Esecuzioni e Fallimenti

Storico

Pubblicato 04 Mar 2026
Aggiornato 05 Apr 2026
Sul mercato 32 giorni
ID Annuncio 127189651