Vendita Appartamento

Appartamento

Via delle Mimose, Roma, Roma

Prezzo
45
mq
2
Locali
1
Camere
1
Bagni

Recensisci questo Immobile

Devi essere registrato per lasciare una recensione.

Accedi

Nessuna recensione ancora. Sii il primo!

Descrizione

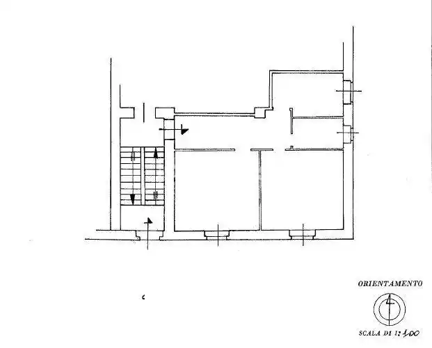
Rif: Mim01 - BILOCALE OTTIMO STATO
In via delle Mimose, a soli 4 minuti a piedi dalla metro C Parco di Centocelle, proponiamo la vendita di un bilocale posto al secondo piano di una palazzina in tinta in buono stato priva di ascensore.
CARATTERISTICHE PRINCIPALI: L'appartamento misura 45 mq e si compone di ingresso, soggiorno, camera, cucina semi abitabile e bagno. Esposizione est. Infissi in PVC doppio-vetro. Presenti due condizionatori nuovi di classe energetica A+++ a pompa di calore; l'appartamento ospita inoltre un soppalco con 3 ingressi. Pronta per essere abitata.
Un'ottima soluzione adatta sia per uso abitativo sia come ottimo investimento.

Caratteristiche

Piano 2
Ascensore No
Stato Ottimo / Ristrutturato
Riscaldamento Autonomo, a radiatori, alimentato a metano

Servizi e accessori

Armadio a muro Infissi esterni in doppio vetro / metallo

Posizione

Zona: Centocelle (Centocelle, Tor de' Schiavi)

Referente

TEMPOCASA Roma Centocelle Mirti

Storico

Pubblicato 05 Mar 2026
Disattivato 15 May 2026
Sul mercato 78 giorni
ID Annuncio 127194191

Recensioni

Vedi tutte
E

Enrico Pandolfi

5.0

Appena ho incontrato l’agente, sono stato colpito dalla sua capacità di ascoltare davvero le mie esigenze. È stato un accompagnamento costante e discreto durante tutte le visite, il che mi ha dato gra...

S

Stefano Pastore

5.0

Le mie precedenti esperienze con agenzie immobiliari erano state spesso deludenti, ma questa volta è stato diverso. Sono stato seguito con professionalità e trasparenza, trovando l’appartamento perfet...

E

Edoardo Bosco

4.7

Le esperienze precedenti con altre agenzie erano state confuse e poco trasparenti, mentre questa volta ho trovato un team serio e competente. Sono stato seguito con professionalità e hanno dimostrato...

I

Ivan Fontana

4.3

Appena ho contato le possibilità, sono rimasto colpito dalla grande flessibilità negli orari e dalla rapidità con cui hanno trovato l’ufficio perfetto per la mia attività. Il team mi ha seguito passo...