Vendita Appartamento

Appartamento

Via Gianni Cecchin, Marostica, Vicenza

Prezzo
130
mq
4
Locali
3
Camere
2
Bagni

Recensisci questo Immobile

Devi essere registrato per lasciare una recensione.

Accedi

Nessuna recensione ancora. Sii il primo!

Descrizione

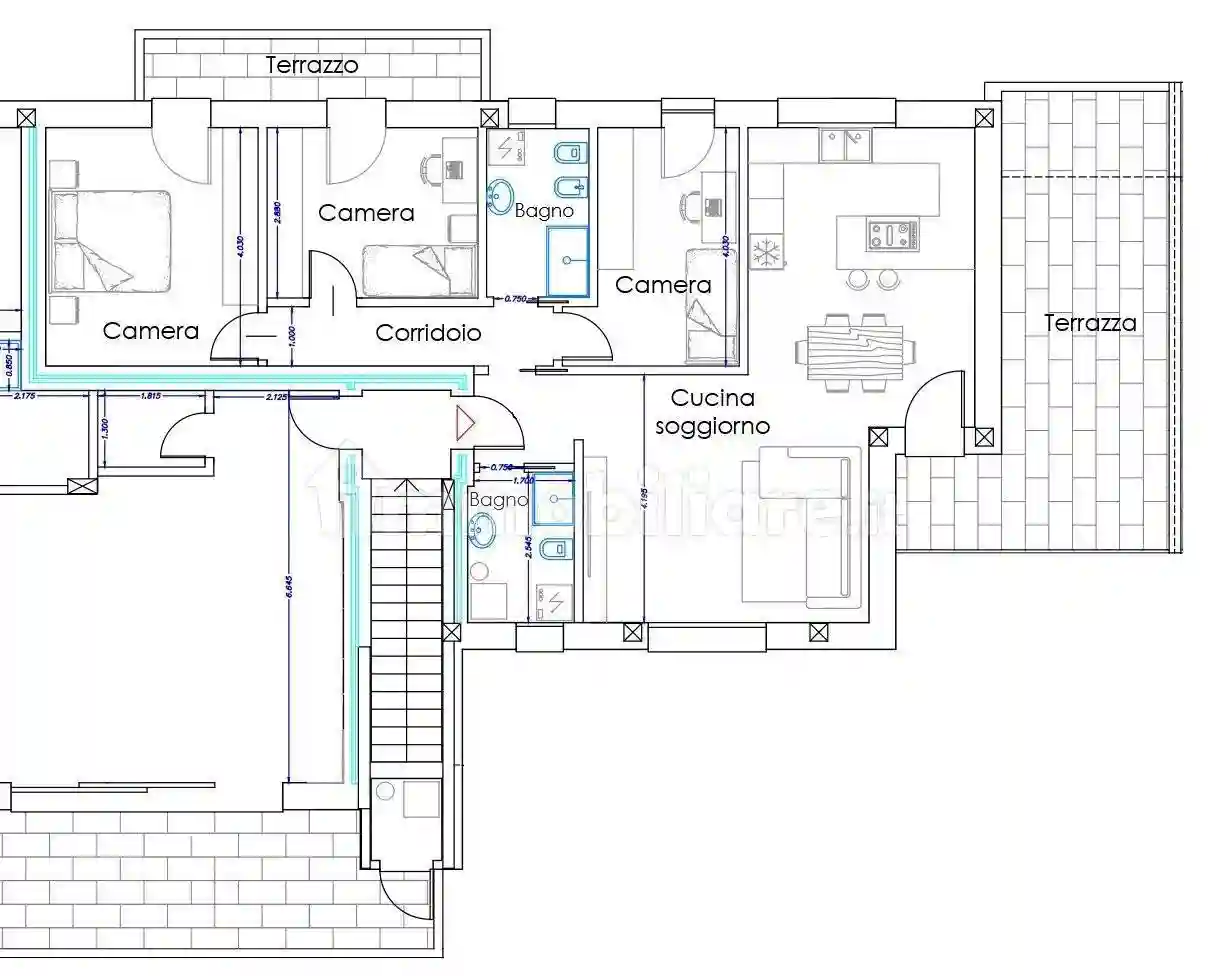
IN FASE DI COSTRUZIONE, AL PIANO PRIMO ED ULTIMO CON INGRESSO INDIPENDENTE, 3 CAMERE, 2 BAGNI, SPAZIOSA TERRAZZA DI 25 M², GARAGE, POSTO AUTO PRIVATO COPERTO CON POMPEIANA, CLASSE A4, FINITURE PERSONALIZZABILI, PREDISPOSIZIONE PER ASCENSORE, ESPOSIZIONE SUD-EST-OVEST

In una delle zone residenziali più tranquille e ricercate di Marostica (VI), immersa nel verde ai piedi delle suggestive colline marosticensi, ma al contempo a pochi passi dal centro storico raggiungibile con una breve passeggiata, proponiamo in vendita esclusivi appartamenti in fase di costruzione al piano primo ed ultimo, ubicati all’interno di un moderno residence di nuova concezione sviluppato su due piani fuori terra, senza interrato, con spese condominiali irrisorie vista la notevole indipendenza di ciascuna unità.

Ogni appartamento gode di un ingresso per sole 2 unità al piano terra, 3 lati completamente liberi con affaccio sull’esterno, ambienti interni luminosi grazie alla perfetta esposizione sud-est-ovest, ben distribuiti e curati nei minimi dettagli, pensati per assicurare il massimo del comfort e della qualità della vita; è presente inoltre una predisposizione per installare un ascensore che collega l’ingresso al piano terra con l’unità abitativa al piano primo.

La classe energetica A4 garantisce massima efficienza e risparmio energetico, grazie all’adozione di tecnologie d’ultima generazione in materia di isolamento termico/acustico ed impiantistico. L’immobile verrà consegnato con un impianto fotovoltaico indipendente da 4 kW, pompa di calore, riscaldamento a pavimento, predisposizione per la VMC per lo scambio/ricircolo d’aria, predisposizione per un impianto di climatizzazione con due split interni e predisposizione per l'impianto d'allarme.

Ciascuna unità abitativa è composta da:

• moderna zona cucina soggiorno open space, molto luminosa grazie all'ampia e moderna vetrata apribile a scorrimento che permette l'uscita sullo spazioso terrazzo abitabile;
• tre camere da letto, ideali per famiglie numerose o per chi necessita di spazi aggiuntivi come uno studio/stanza ospiti, tutte con accesso ad uno dei due terrazzi;
• due bagni completi, moderni e funzionali;
• garage direttamente collegato internamente all’abitazione;
• posto auto coperto con pompeiana di proprietà esclusiva;
• spaziosa ed ampia terrazza abitabile di 25 m², esclusivo ambiente esterno per trascorre piacevoli momenti di relax all’aria aperta e location perfetta per organizzare pranzi e cene.

Gli appartamenti al piano primo godono di una perfetta esposizione solare grazie agli affacci liberi su 3 lati, di una notevole indipendenza e della massima privacy: sono infatti caratterizzati da un ingresso per sole 2 unità, garage posizionato in prossimità dell’ingresso al vano scala, ampio terrazzo in posizione sopraelevata.

Il tutto in una zona residenziale esclusiva a soli 10 minuti a piedi dalla Piazza degli Scacchi ed a 5 minuti dai principali servizi (scuole, supermercati, farmacia, fermate bus, ecc.).; inoltre vista la vicinanza alle caratteristiche colline marosticensi offre la possibilità di piacevoli passeggiate e percorsi naturalistici presenti nei dintorni.

L’ampia possibilità di personalizzazione interna degli spazi e dei materiali di pregio tra i quali scegliere garantiscono la possibilità di creare l’abitazione dei propri sogni: un dettagliato capitolato sui materiali, finiture ed impiantistica è visionabile presso il nostro ufficio.

Soluzione perfetta per chi cerca INDIPENDENZA, SPAZIO ESTERNO, EFFICIENZA ENERGETICA e VICINANZA AL CENTRO, in un contesto residenziale signorile di pregio.

I rendering utilizzati e la posizione indicata nel presente annuncio sono esclusivamente a scopo illustrativo e non costituiscono alcun rapporto contrattuale.

PER MAGGIORI INFORMAZIONI, PER VISIONARE PLANIMETRIE E CAPITOLATO NON ESITARE A CONTATTARCI!

Gimi 333 9936696
Brian 348 2988717

Caratteristiche

Piano 1
Ascensore No
Stato Nuovo / In costruzione
Riscaldamento Autonomo, a pavimento, alimentato a pompa di calore

Servizi e accessori

Cancello elettrico Esposizione esterna Fibra ottica Impianto di allarme Impianto tv con parabola satellitare Infissi esterni in triplo vetro / PVC Porta blindata VideoCitofono

Posizione

Referente

Casa Service Immobiliare

Storico

Pubblicato 04 Mar 2026
Aggiornato 22 May 2026
Sul mercato 79 giorni
ID Annuncio 127208905

Recensioni

Vedi tutte
S

Susanna Guerra

4.7

Ho trovato un appartamento più grande per la mia famiglia grazie a questa agenzia, e sono davvero felice del risultato. Sono stata seguita con molta cortesia e attenzione alle mie esigenze, il team si...