Vendita Appartamento

Appartamento

via Frua, Milano, Milano

Prezzo
63
mq
2
Locali
1
Camere
1
Bagni

Recensisci questo Immobile

Devi essere registrato per lasciare una recensione.

Accedi

Nessuna recensione ancora. Sii il primo!

Descrizione

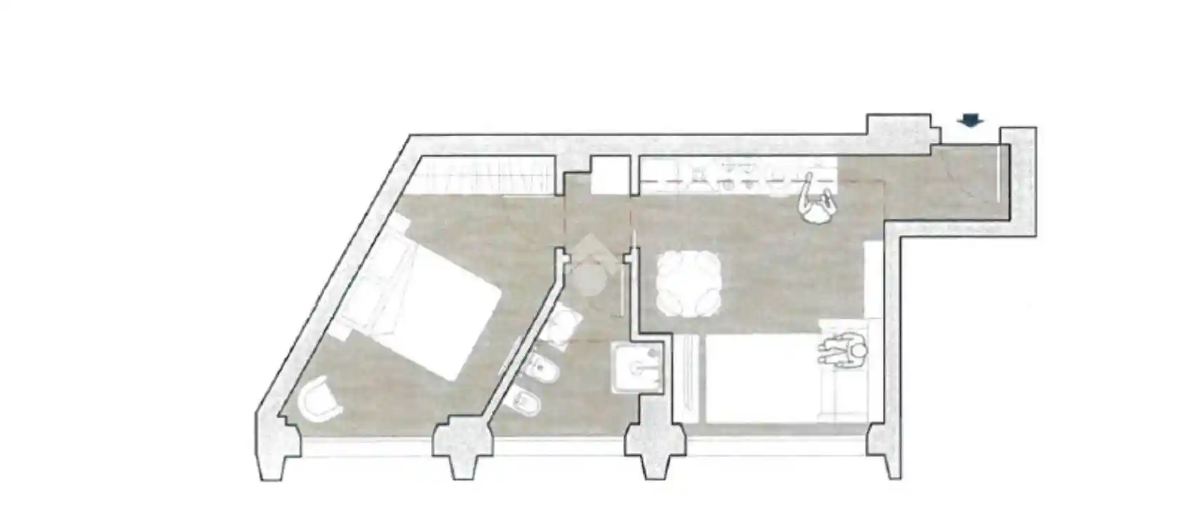
Rif: V116 - DE ANGELI – QUARTIERE FRUA
Nel cuore di una delle zone più eleganti e richieste, proponiamo in vendita esclusivo appartamento di circa 63 mq al primo piano fuori terra, inserito in stabile signorile con servizio di portineria.
L’immobile, frutto del frazionamento di un’unità di maggiori dimensioni, è stato progettato per offrire ambienti moderni, funzionali e luminosi ed è composto da ingresso, ampio soggiorno con cucina a vista, ampia camera da letto e bagno.
Attualmente in fase di ristrutturazione, e sarà disponibile a SETTEMBRE 2026.
Il progetto prevede finiture moderne e curate nei dettagli, con particolare attenzione alla valorizzazione degli spazi e alla qualità dei materiali.
Il contesto è residenziale, tranquillo e perfettamente servito, a pochi passi da negozi, scuole, aree verdi e mezzi di trasporto.
Soluzione ideale per chi desidera un’abitazione di charme in una posizione strategica, perfetta sia come prima casa sia come investimento.
*** Vuoi vendere il tuo immobile e ricevere il saldo immediatamente? Lo Studio Finim ti aiuterà! Ci occuperemo di regolarizzare tutte le pratiche urbanistiche e catastali, di vendere la tua proprietà nel migliore dei modi e in tempi brevi, e di finanziare l'acquirente per quanto necessario. FINIM: la soluzione a portata di mano.

Caratteristiche

Piano 1
Ascensore Si
Stato Ottimo / Ristrutturato
Riscaldamento Autonomo, ad aria, alimentato a pompa di calore

Servizi e accessori

Esposizione esterna Impianto tv con parabola satellitare Infissi esterni in doppio vetro / legno Porta blindata VideoCitofono

Posizione

Zona: Frua (Solari, Washington)

Referente

Abitare con stile FINIM S.r.l.

Storico

Pubblicato 07 Mar 2026
Aggiornato 19 May 2026
Sul mercato 74 giorni
ID Annuncio 127220129

Recensioni

Vedi tutte
A

Amedeo Iorio

4.7

Ho venduto con successo il mio locale commerciale grazie a un’agenzia con un’ampia scelta di immobili e un servizio molto cortese. Sono stato seguito passo passo e ho trovato facilmente il cliente giu...

C

Cristian Liguori

4.7

Ho trovato un appartamento perfetto per i miei figli universitari grazie a questa agenzia. Mi sono sentito seguito con molta professionalità e disponibilità, ricevendo risposte tempestive e chiare in...

G

Guido Leone

4.3

Dopo aver avuto esperienze un po' confusing con altre agenzie, questa volta sono rimasto impressionato dalla conoscenza del mercato locale e dalla rapidità con cui hanno gestito tutta la burocrazia. M...