Vendita Appartamento

Appartamento

Padova, Padova

Prezzo
100
mq
3
Locali
2
Camere
2
Bagni

Recensisci questo Immobile

Devi essere registrato per lasciare una recensione.

Accedi

Nessuna recensione ancora. Sii il primo!

Descrizione

PALAZZO BARBARIGO – RIVIERA TISO DA CAMPOSAMPIERO – TRILOCALE

Nel cuore pulsante della città di Padova, lungo Riviera Tiso da Camposampiero, presentiamo un cantiere di 6 nuove residenze completamente rigenerate e in consegna in 12 mesi.
La posizione garantisce un abitare di alto livello, con tutti i servizi del centro storico, a due passi abbiamo da Prato della Valle, le piazze, il Duomo e il Santo, senza però perdere la comodità del muoversi in auto visto che non siamo all’interno dell’area ZTL.

Il palazzo presente alcuni dettagli storici che donano un valore unico a tutte le abitazioni al suo interno, tali dettagli verranno ripristinati e mantenuti nel rispetto del valore storico della costruzione originale.

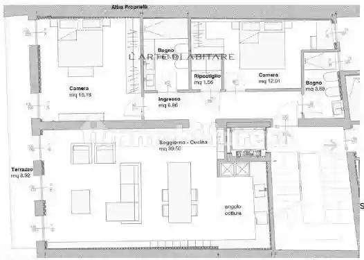
Il piano secondo presenta un appartamento con vista mozzafiato con affaccio su Via XX settembre.
Internamente l’unità si compone di ampio ingresso dove poter adibire armadiatura e scarpiera, una zona living open-space di sagoma rettangolare con 3 ampie vetrate con esposizione sud che garantiscono il massimo della luminosità così da potersi godere ogni momento della giornata.
Proseguendo abbiamo 2 camere da letto di cui una matrimoniale, una camera doppia e due bagni completi con ampi box doccia a filo pavimento.
Il terrazzo abitabile ha accesso completo dalla zona giorno dando facilità nel gestire momenti all’esterno con ospiti.

Disponibilità di posti auto extra.

RIF: SP-06
PREZZO: 420.000
APE: In fase di definizione

Il presente annuncio potrebbe contenere degli errori. La descrizione dei locali potrebbe non essere conforme. Ogni condizione di vendita, metratura, specifica o altro riguardante l'immobile o le condizioni di vendita vengono concordate in fase di appuntamento e comunque prima di una eventuale proposta di acquisto.

Caratteristiche

Piano 2
Ascensore Si
Stato Ottimo / Ristrutturato
Riscaldamento Autonomo, a pavimento, alimentato a pompa di calore

Servizi e accessori

Cancello elettrico Fibra ottica Impianto tv singolo Infissi esterni in triplo vetro / PVC VideoCitofono

Referente

L ’Arte di Abitare - Agenzia di Prato Della Valle

Storico

Pubblicato 06 Mar 2026
Aggiornato 20 May 2026
Sul mercato 76 giorni
ID Annuncio 127222225

Recensioni

Vedi tutte
E

Elia Cannavaro

5.0

Ho trovato l’agenzia molto professionale e competente nel mercato immobiliare di Padova. Mi hanno seguito con attenzione e pazienza, aiutandomi a trovare il bilocale giusto dopo il trasferimento per l...

E

Emanuele Calò

4.7

Ho trovato l'appartamento perfetto per la mia famiglia con l'aiuto di questa agenzia, che mi ha seguito con grande professionalità e attenzione. La gestione dello stress durante la trattativa è stata...