Vendita Appartamento

Appartamento

Mottola, Taranto

Prezzo
80
mq
3
Locali
2
Camere
1
Bagni

Recensisci questo Immobile

Devi essere registrato per lasciare una recensione.

Accedi

Nessuna recensione ancora. Sii il primo!

Descrizione

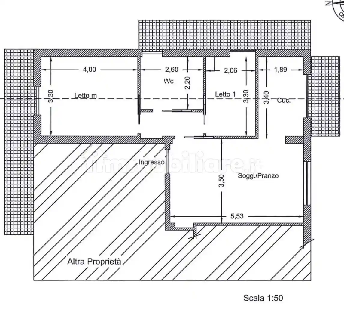
Homesi propone in vendita a Mottola - Taranto, in via Giosuè Carducci, appartamento di 80 mq in ottimo stato, ideale sia come prima casa che come investimento. L'immobile, situato al secondo piano, è composto da 3 locali con ingresso da vano scala condominiale.

Composizione e dettagli rilevanti dell’immobile:
L'immobile di mq 80 circa, oltre balconi, si compone di ampio soggiorno con cucina a vista, stanza da letto matrimoniale, stanzetta, bagno e ripostiglio.

Descrizione ed elementi rilevanti del quartiere:
La posizione dell'unita' immobiliare gode anche dei benefici dei servizi siti nella zona quali: bar, banche, farmacie, supermercati, poste e mezzi di trasporto di superficie.

Chiamaci e fissa la tua visita gratuita con un nostro consulente di zona.
Questa descrizione ha valore puramente indicativo e non costituisce elemento contrattuale

Caratteristiche

Piano 2
Ascensore No
Stato Ottimo / Ristrutturato
Riscaldamento Autonomo, a radiatori, alimentato a metano

Servizi e accessori

Esposizione esterna Impianto tv centralizzato Infissi esterni in doppio vetro / PVC Porta blindata

Posizione

Referente

HomeSì Real Estate s.r.l.

Storico

Pubblicato 06 Mar 2026
Aggiornato 10 Apr 2026
Sul mercato 37 giorni
ID Annuncio 127237431