Vendita Appartamento

Appartamento

Via Ludwig van Beethoven, San Marcellino, Caserta

Prezzo
112
mq
4
Locali
3
Camere
2
Bagni

Recensisci questo Immobile

Devi essere registrato per lasciare una recensione.

Accedi

Nessuna recensione ancora. Sii il primo!

Descrizione

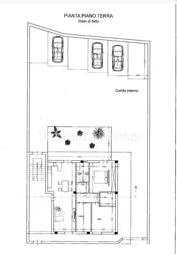
Nel Comune di San Marcellino (Ce) a soli quattro minuti dal Corso Europa, CIMACASA Real Estate Agency propone in vendita appartamento di nuova costruzione di circa 100 mq interni, posto al piano terra con giardino privato di circa 30mq, due posti auto di proprietà esclusiva inclusi nel prezzo, con possibilità di acquistare posti auto extra. Inserito in piccolo contesto condominio di sole tre unità abitative, l'appartamento si compone di soggiorno living, tre camere da letto e doppi servizi, cabine armadio e/o vano lavanderia. La soluzione è in corso di costruzione pertanto in questa fase sarà possibile personalizzare gli spazi secondo le proprie esigenze, con disponibilità di un ampio capitolato per la scelta delle rifiniture interne. L'appartamento sarà consegnato completo con predisposizione d'impianto antifurto e condizionamento, infissi in doppio vetro camera e rifiniture di ottima qualità. Consegna entro in 18 mesi. Per maggiori informazioni non esitate a contattarci.

Caratteristiche

Piano T
Ascensore No
Stato Nuovo / In costruzione
Riscaldamento Autonomo, a radiatori, alimentato a metano

Servizi e accessori

Cancello elettrico Esposizione doppia Fibra ottica Impianto tv centralizzato Infissi esterni in doppio vetro / PVC Porta blindata VideoCitofono

Posizione

Referente

CIMACASA Real Estate Agency

Storico

Pubblicato 06 Mar 2026
Aggiornato 20 May 2026
Sul mercato 75 giorni
ID Annuncio 127237473

Recensioni

Vedi tutte
V

Vito Borrelli

5.0

Durante il processo di ricerca sono stato molto rassicurato dall'attenzione ai dettagli e dalla professionalità dimostrata. Mi sono sentito supportato in ogni fase, sapendo di poter contare su un'agen...

A

Arturo Bernardi

4.3

Se cercate un’agenzia affidabile e professionale, non potete sbagliare! Mi sono rivolto a loro per trovare un appartamento con vista mare a Portici e sono stato davvero felice della rapidità e traspar...