Vendita Appartamento

Appartamento

VIA DELLA CASCINETTA, 6, Agrate Brianza, Monza e Brianza

Prezzo
Ottimo Affare: 32% sotto la media
130
mq
4
Locali
3
Camere
2
Bagni

Recensisci questo Immobile

Devi essere registrato per lasciare una recensione.

Accedi

Nessuna recensione ancora. Sii il primo!

Descrizione

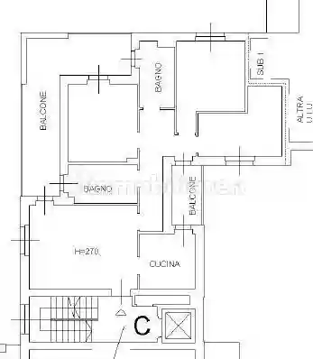
Appartamento quadrilocale posto al piano primo, composto da soggiorno, cucina abitabile, tre camere da letto, due bagni e due balconi. Completa la soluzione una cantina ed un box.
25 56624
Per ulteriori informazioni contattare il seguente recapito telefonico 02/9552248 oppure scrivete a info@melpumcasa.it.
MELPUM CASA è un punto di riferimento nel settore delle aste immobiliari. Il nostro team è composto da esperti professionisti in grado di soddisfare le esigenze del cliente, garantendo un adeguato servizio di consulenza in ogni fase dell'acquisto, fino all'immissione in possesso dell'immobile. Affidarsi a noi significa acquisire un immobile in modo consapevole e con la massima chiarezza su tempistiche, costi e procedure. MELPUM CASA offre ulteriori servizi dedicati al cliente quali: - Broker per ottenimento mutuo - Preventivi di spesa riguardanti ristrutturazioni e/o manutenzioni - Redazione di pratiche edilizie e catastali - Intermediazione su future vendite o locazioni.

Caratteristiche

Piano 1
Ascensore Si
Riscaldamento Centralizzato

Posizione

Referente

MelpumCasa

Storico

Pubblicato 05 Mar 2026
Disattivato 01 May 2026
Sul mercato 82 giorni
ID Annuncio 127239459

Recensioni

Vedi tutte
N

Nicole Masi

4.7

Quello che mi ha colpito di più è stata la loro attenzione ai dettagli e la conoscenza approfondita del mercato locale. Sono stata seguita con grande professionalità e onestà nelle valutazioni, il che...

S

Serena Sala

4.3

Stavo cercando un appartamento con vista mare e sono stata davvero fortunata a trovare questa agenzia a Melzo. Mi hanno seguita passo passo, mostrandomi diverse soluzioni e aiutandomi anche con la ric...

L

Letizia Perna

4.3

Ho trovato l’appartamento perfetto per i miei figli universitari grazie a questa agenzia, che si è rivelata molto puntuale negli appuntamenti e onesta nelle valutazioni. Mi sono sentita seguita passo...