Vendita Appartamento

Appartamento

Via San Sebastiano, snc, Castelgomberto, Vicenza

Prezzo
126
mq
5
Locali
2
Camere
2
Bagni

Recensisci questo Immobile

Devi essere registrato per lasciare una recensione.

Accedi

Nessuna recensione ancora. Sii il primo!

Descrizione

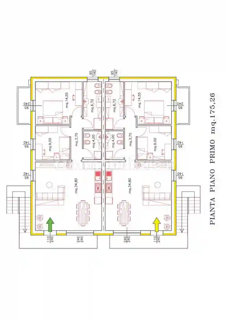
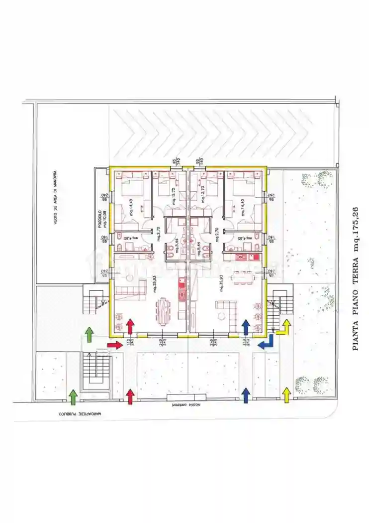
Vendita diretta di appartamenti di nuova costruzione in Castelgomberto (VI) Via San Sebastiano. In zona residenziale tranquilla e comoda ai servizi proponiamo appartamenti con ingresso indipendente, progettati per offrire comfort abitativo, funzionalità degli spazi ed elevata efficienza energetica.
Le unità, ai piani terra e primo, godono di ambienti open space, ingresso completamente indipendente, giardino privato e garage esclusivo di amplie metrature.
Una soluzione ideale per chi cerca indipendenza, comodità e qualità costruttiva.

Caratteristiche

Piano S, T
Stato Nuovo / In costruzione
Riscaldamento Autonomo

Servizi e accessori

Bagno per disabili Cucina Esposizione sud Infissi esterni in triplo vetro / legno

Posizione

Agenzia Immobiliare

Storico

Pubblicato 06 Mar 2026
Aggiornato 26 May 2026
Sul mercato 81 giorni
ID Annuncio 127244409