Indietro
Vendita Casa indipendente

Casa indipendente

Via Borgo Venezia , 2, Roverbella, Mantova

Prezzo
Ottimo Affare: 39% sotto la media
288
mq
5+
Locali
4
Camere
2
Bagni

Recensisci questo Immobile

Devi essere registrato per lasciare una recensione.

Accedi

Nessuna recensione ancora. Sii il primo!

Descrizione

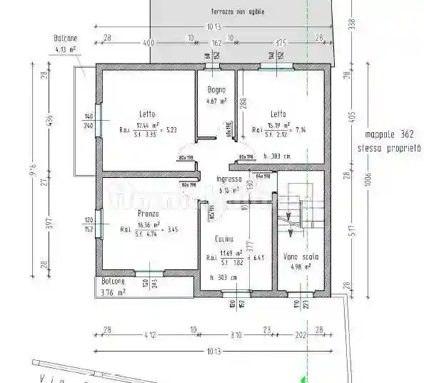
A Roverbella proponiamo interessante soluzione immobiliare indipendente composta da due appartamenti distinti (interno 4 – riferimento Luciana).
L’immobile si sviluppa su due livelli: un appartamento al piano rialzato e uno al primo piano, entrambi caratterizzati dalla medesima distribuzione degli spazi interni.
Ogni unità è composta da:
• ingresso
• cucina separata
• soggiorno con balcone
• corridoio
• servizio con vasca
• due generose camere matrimoniali (di cui una con balcone)

Completano la proprietà:
• ampio garage di 72 mq
• magazzino di 85 mq
• zona lavanderia di 27 mq

I due appartamenti condividono un’area verde comune e l’ingresso ai box auto.

L’edificio, realizzato a metà degli anni ’60, necessita di interventi di riqualificazione degli impianti e dei servizi igienici, offrendo così l’opportunità di personalizzare gli ambienti secondo le proprie esigenze.

Attualmente le unità sono nettamente suddivise, ma è possibile convertirle in un’unica soluzione abitativa, ideale per chi desidera ampi spazi o una soluzione genitori/figli.

Per maggiori informazioni o per fissare una visita, non esitate a contattarci.

Classe Energetica: G

Caratteristiche

Ascensore No
Stato Da ristrutturare
Riscaldamento Centralizzato, a radiatori, alimentato a metano

Servizi e accessori

Fibra ottica Impianto tv centralizzato Infissi esterni in vetro / legno

Posizione

Referente

Agire Immobiliare

Storico

Pubblicato 07 Mar 2026
Disattivato 22 May 2026
Sul mercato 80 giorni
ID Annuncio 127249101

Recensioni

Vedi tutte
G

Gianluca Prandini

5.0

Durante il processo mi sono sentito molto supportato e in buone mani, grazie alla capacità di ascolto e alla competenza dimostrata durante tutta la trattativa. Ho trovato l'investimento giusto in modo...

A

Aldo Taddei

4.0

Appena ho varcato la soglia di questa agenzia, sono rimasto colpito dalla loro attenzione ai dettagli e dalla conoscenza approfondita delle normative immobiliari. Sono stato seguito con professionalit...