Indietro
Vendita Villetta a schiera

Villetta a schiera

Zero Branco, Treviso

Prezzo
140
mq
5+
Locali
3
Camere
2
Bagni

Recensisci questo Immobile

Devi essere registrato per lasciare una recensione.

Accedi

Nessuna recensione ancora. Sii il primo!

Descrizione

ZERO BRANCO - COMODO AL CENTRO
RIF.54 - In esclusivo contesto residenziale di sole 4 unità abitative, proponiamo nuova porzione di abitazione indipendente di prossima realizzazione, costruita in classe energetica A4 con le più moderne tecnologie per garantire comfort, efficienza energetica e qualità abitativa.

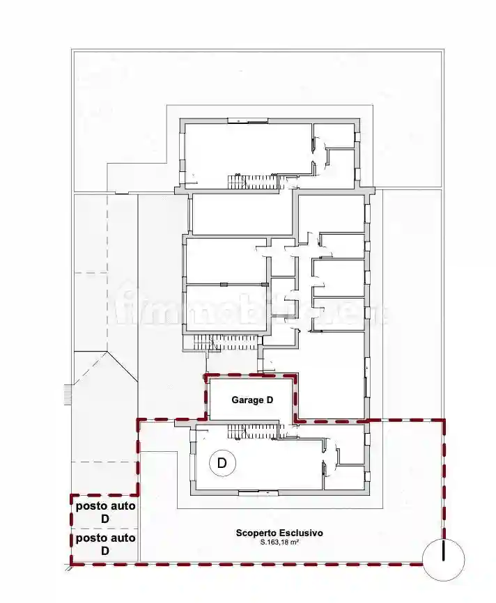
L’abitazione si sviluppa su due livelli ed è dotata di ingresso indipendente e giardino privato, oltre a due comodi posti auto esterni e garage con accesso diretto all’immobile.

Al piano terra troviamo una splendida zona giorno di circa 40 mq con soggiorno e angolo cottura, ambiente ampio e luminoso ideale per la vita quotidiana e per ricevere ospiti. Completano il piano un bagno finestrato e un vano tecnico.
La zona notte al piano primo è composta da tre camere da letto: una camera matrimoniale con cabina armadio, due camere singole e un secondo bagno finestrato.

Soluzione ideale per chi cerca indipendenza, spazi moderni e un contesto abitativo tranquillo con poche unità.

Disponibili solamente 2 abitazioni: un’opportunità unica per chi desidera una casa nuova e ad alta efficienza energetica.

Caratteristiche

Ascensore No
Stato Nuovo / In costruzione
Riscaldamento Autonomo, a pavimento, alimentato a fotovoltaico

Servizi e accessori

Cancello elettrico Esposizione esterna Impianto di allarme Impianto tv centralizzato Infissi esterni in triplo vetro / PVC Porta blindata VideoCitofono

Posizione

Referente

Lombardi Immobiliare

Storico

Pubblicato 06 Mar 2026
Aggiornato 26 May 2026
Sul mercato 81 giorni
ID Annuncio 127253497

Recensioni

Vedi tutte
E

Enzo Dini

5.0

Apprezzavo la cura con cui hanno gestito ogni dettaglio durante la ricerca dell’appartamento, dimostrando professionalità e attenzione alle nostre esigenze. Mi sono sentito seguito passo dopo passo, c...

C

Carlotta Angelini

4.7

Se cercate un'agenzia affidabile, sceglietela senza dubbi: sono stata seguita con attenzione e professionalità, sempre disponibili anche fuori orario. Mi hanno aiutata a trovare un investimento immobi...

G

Giada Pellegrini

4.7

Ho trovato l’ufficio perfetto per la mia attività grazie a un’agenzia immobiliare molto professionale e disponibile. Sono stata seguita passo dopo passo con chiarezza e attenzione alle mie esigenze, i...

J

Jessica Leonardi

4.3

Se cercate un’agenzia immobiliare affidabile, consiglio di affidarsi a un team competente e professionale. Mi sono trovata benissimo: sono stata seguita passo passo nella compravendita e ho apprezzato...

E

Erica Traverso

4.3

Ho trovato l’agenzia molto professionale e disponibile, sempre seguita con attenzione durante tutte le fasi della ricerca. L’ampia scelta di immobili mi ha permesso di trovare il magazzino perfetto pe...