Vendita Appartamento

Appartamento

Traversa Turner, Sarno, Salerno

Prezzo
133
mq
5
Locali
4
Camere
2
Bagni

Recensisci questo Immobile

Devi essere registrato per lasciare una recensione.

Accedi

Nessuna recensione ancora. Sii il primo!

Descrizione

OTTIMA OCCASIONE - ASTA IMMOBILIARE

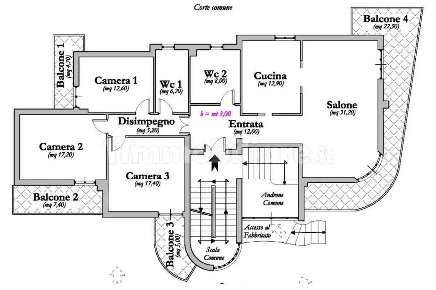
appartamento ubicato in Sarno (SA) al Corso Vittorio Emanuele Traversa Turner n. 12, piano rialzato, L’abitazione ha una superficie calpestabile di mq 122,70 mentre con 4 balconi con superficie calpestabile complessiva di mq 39,60. L’altezza interna è di m 3,00. L’appartamento è composto da 3 camere, un vano entrata, una cucina, un salone, un disimpegno, n 2 wc e n 4 balconi . - Traversa Turner

GLI AVVOCATI SPECIALIZZATI IN ASTE IMMOBILIARI DI SIMPLEX DOMUS GARANTISCONO UN ACQUISTO FACILE, SICURO ED ECONOMICO.

CHIAMA PER AVERE MAGGIORI INFORMAZIONI.

Il team di Avvocati di Simplex Domus è specializzato anche in acquisto in pre-asta e acquisto di crediti deteriorati NPL.

Comprare un immobile all’asta è una eccellente opportunità economica.

Ricordiamo che è possibile comprare un immobile all'asta tramite un mutuo e che tutti i clienti di Simplex Domus ricevono una consulenza mutuo gratuita.

Più di 1000 famiglie e aziende hanno scelto Simplex Domus.

Tutti gli annunci immobiliari hanno scopo pubblicitario e Simplex Domus non può garantire la totale esattezza o contemporaneità di tutte le informazioni riportate. Pertanto consigliamo di visionare tutta la documentazione del tribunale tramite un nostro Avvocato specializzato.

Grazie per aver visionato il nostro annuncio.

Caratteristiche

Piano 1
Ascensore Si
Stato Buono / Abitabile
Riscaldamento Autonomo, a radiatori, alimentato a gas

Servizi e accessori

Cancello elettrico Esposizione doppia Fibra ottica Impianto tv singolo Infissi esterni in doppio vetro / PVC Porta blindata VideoCitofono

Posizione

Referente

Simplex Domus S.R.L.

Storico

Pubblicato 06 Mar 2026
Disattivato 14 Mar 2026
Sul mercato 75 giorni
ID Annuncio 127262907

Recensioni

Vedi tutte
G

Greta Capraro

4.7

Durante il processo mi sono sentita molto rassicurata, perché sono stata seguita passo passo e tutto è stato molto chiaro. Ho trovato l’agenzia davvero efficiente, con risposte rapide e spiegazioni se...