Vendita Villa

Villa

Via della Rinascita, 14, Sequals, Pordenone

Prezzo
Ottimo Affare: 29% sotto la media
160
mq
5
Locali
1
Bagni

Recensisci questo Immobile

Devi essere registrato per lasciare una recensione.

Accedi

Nessuna recensione ancora. Sii il primo!

Descrizione

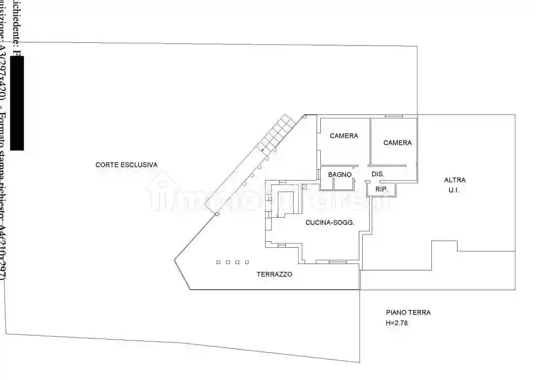
Porzione di fabbricato bifamiliare, su 2 piani fuori terra, oltre allo scantinato, realizzato negli anni '70 e successivamente ristrutturato.
La distribuzione interna è la seguente: piano seminterrato con portico e 2 ripostigli, oltre lavanderia/wc, cantina e autorimessa; piano primo (rialzato) con cucina-soggiorno, ripostiglio, bagno e 2 camere, oltre ad ampio terrazzo; p.1 con soffitta.
LOTTO UNICO. Proc. 186/2024
Ulteriori informazioni, immagini e analisi tecnica dell'immobile in fase di consulenza.

Trattasi di acquisto tramite vendita giudiziaria da parte del Tribunale competente con l'assistenza dello Studio Asta Chiara.

Il nostro Studio è specializzato nell’acquisizione di immobili tramite esecuzioni immobiliari, aste giudiziarie, fallimenti, accordi pre-asta (saldo stralcio), per garantire ai nostri clienti l’aggiudicazione di un immobile ad un prezzo conveniente e sicuro al 100%.
Seguiamo i nostri clienti prima, durante e dopo l’asta e siamo appoggiati ad uno studio legale per un supporto ancora più completo.

Il nostro Studio Asta Chiara offre i seguenti servizi:
- Prima consulenza sul funzionamento delle vendite giudiziarie e analisi delle varie possibilità.
- Studio e valutazione dell'investimento sulla base delle necessità del cliente.
- Richiesta di visita dell’immobile
- Stesura dell’offerta irrevocabile e di tutte le pratiche per la partecipazione all’asta.
- Assistenza e accompagnamento il giorno dell’asta.
- Assistenza successiva all’aggiudicazione per tutte le pratiche relative (richiesta tassazione agevolata; saldo-prezzo; rilascio del decreto di trasferimento; eventuale liberazione dell’immobile; sgombero di eventuali materiali)
- Assistenza alla consegna immobile.

Per appuntamenti o informazioni 3351607296.

Caratteristiche

Ascensore No

Posizione

Referente

Asta Chiara

Storico

Pubblicato 07 Mar 2026
Disattivato 23 Apr 2026
Sul mercato 76 giorni
ID Annuncio 127280001