Vendita Appartamento

Appartamento

Santa Marinella, Roma

Prezzo
Ottimo Affare: 81% sotto la media
100
mq
3
Locali
2
Camere
1
Bagni

Recensisci questo Immobile

Devi essere registrato per lasciare una recensione.

Accedi

Nessuna recensione ancora. Sii il primo!

Descrizione

NUDA PROPRIETA' >>>investimento>>>Comodo appartamento>>> si vende Nuda Proprietà, usufruttuario con meno di 60 anni, al centro di Santa Marinella, zona molto richiesta a pochi passi dalla stazione, di fronte ai servizi e a pochi passi dal mare>>> occasione unica, investimento interessante
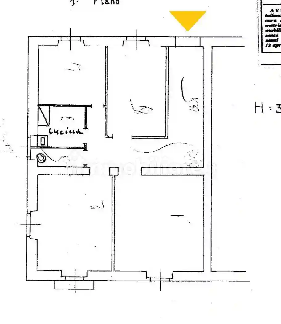
L'appartamento si compone da ingresso, due camere grandi, soggiorno, cucinotto, bagno; un balconcino a livello e un grande solarium vista mare ad utilizzo esclusivo sovrastante e accessibile da una scala interna, completano la proprietà. L'immobile è inserito in una costruzione del 1939, palazzina storica al centro di Santa Marinella, necessita di interventi di manutenzione.

Caratteristiche

Piano R
Ascensore No
Stato Da ristrutturare

Servizi e accessori

Esposizione esterna Fibra ottica Infissi esterni in vetro / PVC Porta blindata

Posizione

Referente

Sun Immobiliare di Alessandra Sancricca

Storico

Pubblicato 09 Mar 2026
Disattivato 16 Apr 2026
Sul mercato 75 giorni
ID Annuncio 127313013