Vendita Villa

Villa

Santa Croce sull'Arno, Pisa

Prezzo
Buon Prezzo: 22% sotto la media
278
mq
5+
Locali
3
Camere
2
Bagni

Recensisci questo Immobile

Devi essere registrato per lasciare una recensione.

Accedi

Nessuna recensione ancora. Sii il primo!

Descrizione

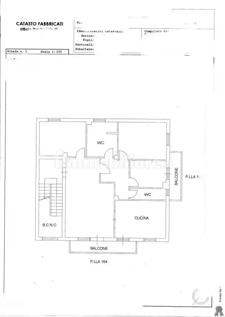
Villa bifamiliare con accesso indipendente, articolata su tre piani fuori terra ed uno interrato, composta, al piano interrato, da cantina con scala di accesso interna esclusiva che conduce direttamente all'appartamento; al piano terra, avente accesso da giardino esclusivo, da ingresso, soggiorno, cucina, pranzo, ripostiglio, disimpegno e vano scala che conduce al piano primo, nonché garage con servizio igienico; al piano primo, da tre camere, due bagni, disimpegno, ripostiglio e quattro terrazzi, oltre vano scala che conduce alla soffitta dove si trova un locale con terrazzo. Completa la consistenza immobiliare, quale pertinenza della villetta, il resede esclusivo circostante tre lati, completamente recintato, sul quale si trova il pozzo.
Immobile venduto tramite Asta Giudiziaria.
I dati e le foto del presente annuncio sono solo esemplificativi della collocazione e consistenza dell'immobile. Le specifiche tecniche e giuridiche sono descritte ufficialmente e analiticamente nell'avviso di vendita e nella perizia depositati presso la cancelleria del Tribunale.

Caratteristiche

Ascensore No
Stato Buono / Abitabile
Riscaldamento Autonomo, alimentato a metano

Posizione

Referente

Studio ACVG

Storico

Pubblicato 08 Mar 2026
Aggiornato 20 May 2026
Sul mercato 74 giorni
ID Annuncio 127314085

Recensioni

Vedi tutte
M

Marco Romagnoli

4.7

Ho scelto questa agenzia perché avevo bisogno di qualcuno che conoscesse bene le normative e che potesse seguire la mia trattativa senza stress. Sono stato molto soddisfatto della professionalità e de...

A

Alberto Morrone

4.7

Ho trovato l'ufficio perfetto grazie alla loro conoscenza approfondita del mercato locale e alla pazienza nel ascoltare le mie esigenze. Sono stato molto seguito e aiutato in ogni fase, il che ha reso...