Vendita Villa Luxury

Villa

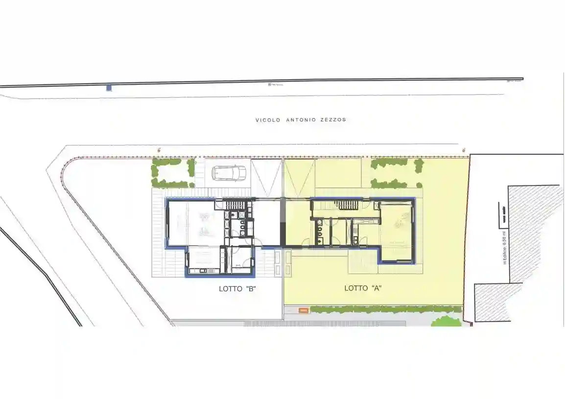
Via Antonio Zezzos, Treviso, Treviso

Prezzo
210
mq
5
Locali
4
Camere
3
Bagni

Recensisci questo Immobile

Devi essere registrato per lasciare una recensione.

Accedi

Nessuna recensione ancora. Sii il primo!

Descrizione

Treviso, zona Selvana, proponiamo in vendita porzione di bifamiliare di nuova costruzione, entrambe le unità sono dispobili, con consegna prevista in primavera/estate 2026.
L'immobile si sviluppa su due livelli, offrendo una superficie complessiva di 210 mq.
Al suo interno, al piano terra la casa accoglie un'ampia zona living con soggiorno e cucina open space con accesso al giardino ideale per momenti di relax all'aperto. Troviamo poi un'altra camera versatile, utilizzabile come studio o sala hobby e un bagno di servizio.
Al piano primo troviamo tre camere, due bagni e un ampio terrazzo.
Completano la proprietà un box auto e un posto auto esterno, garantendo comodità e sicurezza.
Il giardino privato offre uno spazio verde per godere della natura.
L'immobile vanta di un’elevata efficienza energetica, l’impianto fotovoltaico da 6 kW è integrato con una pompa di calore che alimenta il riscaldamento a pavimento e la produzione di acqua calda sanitaria.
Una soluzione abitativa ideale per chi cerca spazio e modernità in una zona residenziale ben servita.

Caratteristiche

Ascensore No
Stato Nuovo / In costruzione
Riscaldamento Autonomo, a pavimento, alimentato a metano

Posizione

Zona: Selvana (Fiera, Selvana)

Referente

Affiliato Tecnocasa: IMMOBILIARE4 SAS

Storico

Pubblicato 12 Mar 2026
Aggiornato 22 May 2026
Sul mercato 72 giorni
ID Annuncio 127341863

Recensioni

Vedi tutte
M

Mario Gasparini

4.7

Durante una visita pomeridiana, ho trovato subito l’appartamento vista mare che cercavo grazie alla loro conoscenza approfondita del mercato locale. Sono stato molto colpito dalla rapidità con cui han...

F

Federica Boni

4.7

Ho trovato l’appartamento ideale per i miei figli grazie a un’assistenza impeccabile e molto professionale. Sono stata seguita passo passo, dalla ricerca alla firma del contratto, e mi sono sentita da...

D

Davide Caputo

4.7

Ricordo ancora il momento in cui ho firmato il contratto, tutto è andato liscia e senza intoppi grazie alla loro professionalità. Avevo bisogno di vendere un appartamento di famiglia e ho trovato un’a...

F

Federico Ferretti

4.7

Ricordo ancora il momento in cui ho trovato la casa perfetta, un’ottima sensazione di tranquillità e soddisfazione. L’attenzione alle mie esigenze è stata palpabile fin dal primo colloquio, e ho appre...

A

Alessandro Nardi

4.3

Dopo varie esperienze con altre agenzie, posso dire che questa a Treviso ha fatto davvero la differenza. Ho trovato un appartamento ideale per i miei figli, con un’assistenza trasparente e senza sorpr...