Vendita Villa

Villa

Via Appia Sud, 00049 Velletri RM, Italia - Velletri (RM), Velletri, Roma

Prezzo
Ottimo Affare: 62% sotto la media
332
mq
5+
Locali
6
Camere
2
Bagni

Recensisci questo Immobile

Devi essere registrato per lasciare una recensione.

Accedi

Nessuna recensione ancora. Sii il primo!

Descrizione

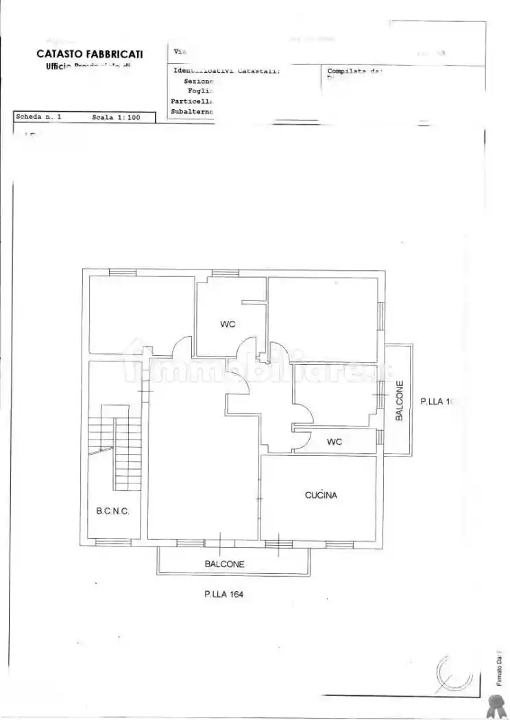
Villino con annesso lastrico solare ad uso terrazzo, oltre manufatto distaccato con due centrali termiche e portico.

AstaDev marchio del Gruppo Property Dev - Il tuo partner per investimenti immobiliari in asta

Cerchi un'opportunità d'investimento immobiliare sicura e vantaggiosa? Con AstaDev, ti guidiamo passo dopo passo nel mondo delle aste giudiziarie, garantendoti un servizio completo e professionale.

Cosa offriamo:

• Ricerca personalizzata dell'immobile: Analizziamo il mercato per proporti le migliori opportunità.
• Certificazione documenti: Verifichiamo la correttezza e la legalità di tutta la documentazione dell'immobile.
• Analisi dell'investimento: Valutiamo il potenziale economico e i possibili rischi per assicurarti un investimento sicuro.
• Assistenza durante l'asta: Ti accompagniamo in ogni fase della partecipazione, dalla preparazione fino alla conclusione.
• Gestione dell'acquisto del credito immobiliare: Semplifichiamo l'intero processo per garantirti un'esperienza senza stress.
• Consulenza Mutuo: Grazie alla partnership con Euroansa Spa, leader in Italia per la mediazione creditizia con oltre 34 convenzioni bancarie, ti offriamo consulenza professionale per ottenere il miglior finanziamento per il tuo acquisto immobiliare.
Con AstaDev, hai la sicurezza di un partner affidabile che ti assiste per ottimizzare il tuo investimento e acquistare l'immobile perfetto per le tue esigenze. Contattaci oggi stesso per maggiori informazioni e per iniziare il tuo percorso di investimento.

Caratteristiche

Ascensore No
Stato Buono / Abitabile
Riscaldamento Autonomo, a radiatori, alimentato a gas

Servizi e accessori

Cancello elettrico Fibra ottica Impianto di allarme Impianto tv singolo Infissi esterni in vetro / legno Porta blindata VideoCitofono

Posizione

Referente

Asta Dev

Storico

Pubblicato 12 Mar 2026
Disattivato 05 Apr 2026
Sul mercato 74 giorni
ID Annuncio 127349095

Recensioni

Vedi tutte
D

Daniele Laino

4.3

Come in passato avevo avuto esperienze meno fluide, questa volta sono stato davvero sorpreso dalla professionalità dell’agenzia. Mi sono sentito seguito passo dopo passo, grazie a un supporto prezioso...