Vendita Appartamento

Appartamento

Via alla Castellana, 3, Cernusco sul Naviglio, Milano

Prezzo
Ottimo Affare: 51% sotto la media
385
mq
4
Locali
3
Camere
3
Bagni

Recensisci questo Immobile

Devi essere registrato per lasciare una recensione.

Accedi

Nessuna recensione ancora. Sii il primo!

Descrizione

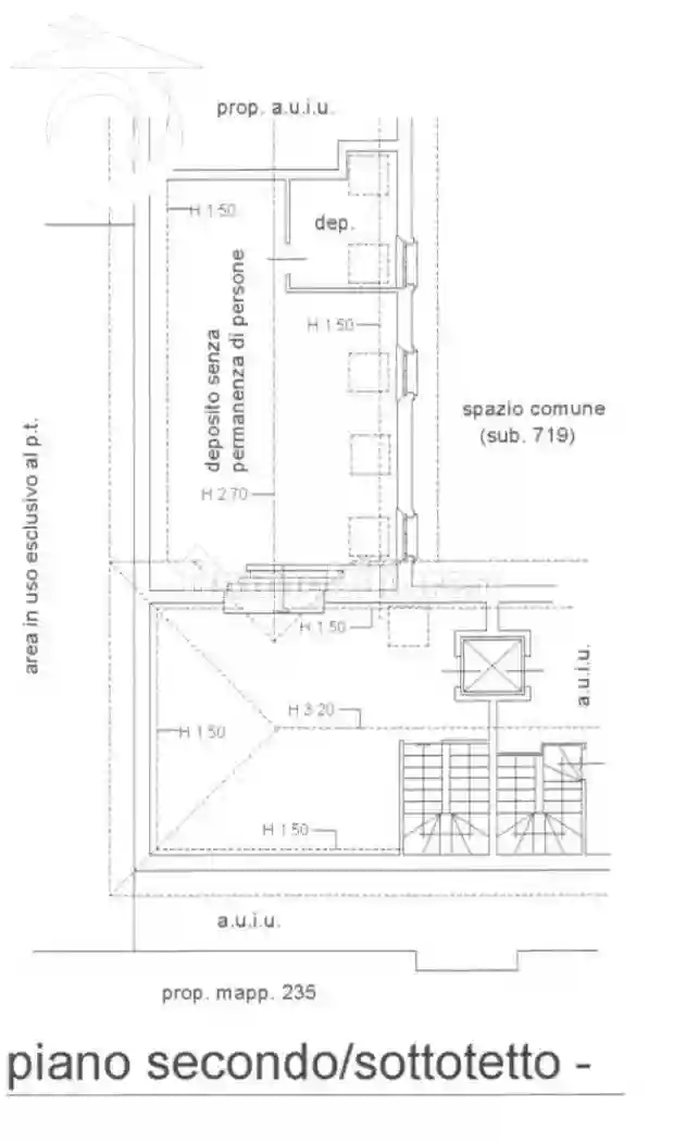
Asta Accordo Casa propone in vendita all'asta, lotto 1: appartamento su più livelli terra/cielo e due boxes.
L'immobile è così composto:
- P.T. ingresso, doppio soggiorno, cucina abitabile e bagno;
- P.1: tre camere da letto, due cabine armadio e tre bagni;
- P.2: ampio sottotetto;
- P. Int.: cantina, lavanderia e centrale termica.

I beni sono sottoposti a vincolo di tutela del ministero della cultura.

Valore di mercato allo stato di fatto: euro 1.413.125,00
Spese condominiali: nessuna

Su tua richiesta, valutiamo la possibilità di comprare la casa prima dell'asta, trattando direttamente con la banca per evitarti la gara.

Cosa significa comprare in "Pre-Asta"?
In pratica:

Facciamo un'offerta diretta: Cerchiamo un accordo per chiudere l'acquisto subito.

Acquisto del Credito: Possiamo persino "sostituirci" alla banca per garantirti una corsia preferenziale sulla casa.

Risparmio e Serenità: Eviti i rialzi dell'asta e compri a un prezzo d'occasione in totale sicurezza.

Non perdere tempo, la consulenza è gratuita!
Contattaci subito per scoprire se questo immobile può essere tuo ancora prima che finisca all'asta
Contattaci al 3444041972
https://accordocasa.com

Caratteristiche

Piano T
Ascensore Si
Stato Buono / Abitabile
Riscaldamento Autonomo, a radiatori, alimentato a metano

Servizi e accessori

Cucina Fibra ottica Impianto di allarme Infissi esterni in doppio vetro / legno

Posizione

Referente

Accordo Casa Srl

Storico

Pubblicato 12 Mar 2026
Disattivato 11 Apr 2026
Sul mercato 69 giorni
ID Annuncio 127365997

Recensioni

Vedi tutte
K

Katia Mannino

5.0

La precisione con cui sono stati gestiti gli appuntamenti mi ha colpito fin da subito, dimostrando grande professionalità. Mi sono sentita seguita con attenzione durante tutto il processo, ricevendo a...

M

Marina Gualtieri

4.7

Se state cercando un'agenzia immobiliare affidabile a Bergamo, vi consiglio di rivolgervi a questa! Sono stata davvero soddisfatta, perché hanno una conoscenza approfondita delle normative e sono semp...

C

Chiara Marconi

4.7

Avevo bisogno di trovare un appartamento a Bergamo per i miei figli universitari e sono stata davvero fortunata. Mi sono trovata davanti a un team molto onesto e disponibile, che mi ha seguito passo d...

A

Anna Leonardi

4.3

Fin dal primo appuntamento sono stata colpita dalla vasta scelta di immobili disponibili, davvero difficile scegliere! L'agenzia si è mostrata super trasparente e disponibile, seguendomi passo passo i...