Vendita Appartamento

Appartamento

Via dei Carbonari, Casalecchio di Reno, Bologna

Prezzo
96
mq
3
Locali
2
Camere
2
Bagni

Recensisci questo Immobile

Devi essere registrato per lasciare una recensione.

Accedi

Nessuna recensione ancora. Sii il primo!

Descrizione

Nel cuore di Casalecchio di Reno, a pochi minuti dal centro di Bologna, sta per prendere vita un nuovo ed esclusivo progetto residenziale pensato per offrire confort abitativo, qualità costruttiva e modernità.

Prossima realizzazione di una nuova ed elegante palazzina residenziale, composta da appartamenti di nuova generazione progettati per garantire elevati standard di efficienza energetica, funzionalità degli spazi e qualità della vita.

L'intervento sorgerà in posizione centrale e strategica comoda a tutti i principali servizi : negozi, scuole, mezzi pubblici e aree verdi, il tutto in un contesto residenziale tranquillo e ben servito.

Le nuove abitazioni saranno caratterizzate da:

- architettura moderna e linee eleganti.

- elevato comfort abitativo.

- tecnologie costruttive di ultima generazione.

- grande attenzione al risparmio energetico.

- spazi luminosi e ben distribuiti.

Il progetto prevede diverse soluzioni abitative, ideali sia come prima casa sia come investimento immobiliare, con la possibilità di personalizzare gli spazi interni secondo le proprie esigenze.

Un'opportunità unica per vivere in una casa nuova, efficiente e moderna, nel cuore di una delle zone più richieste dell'area bolognese.

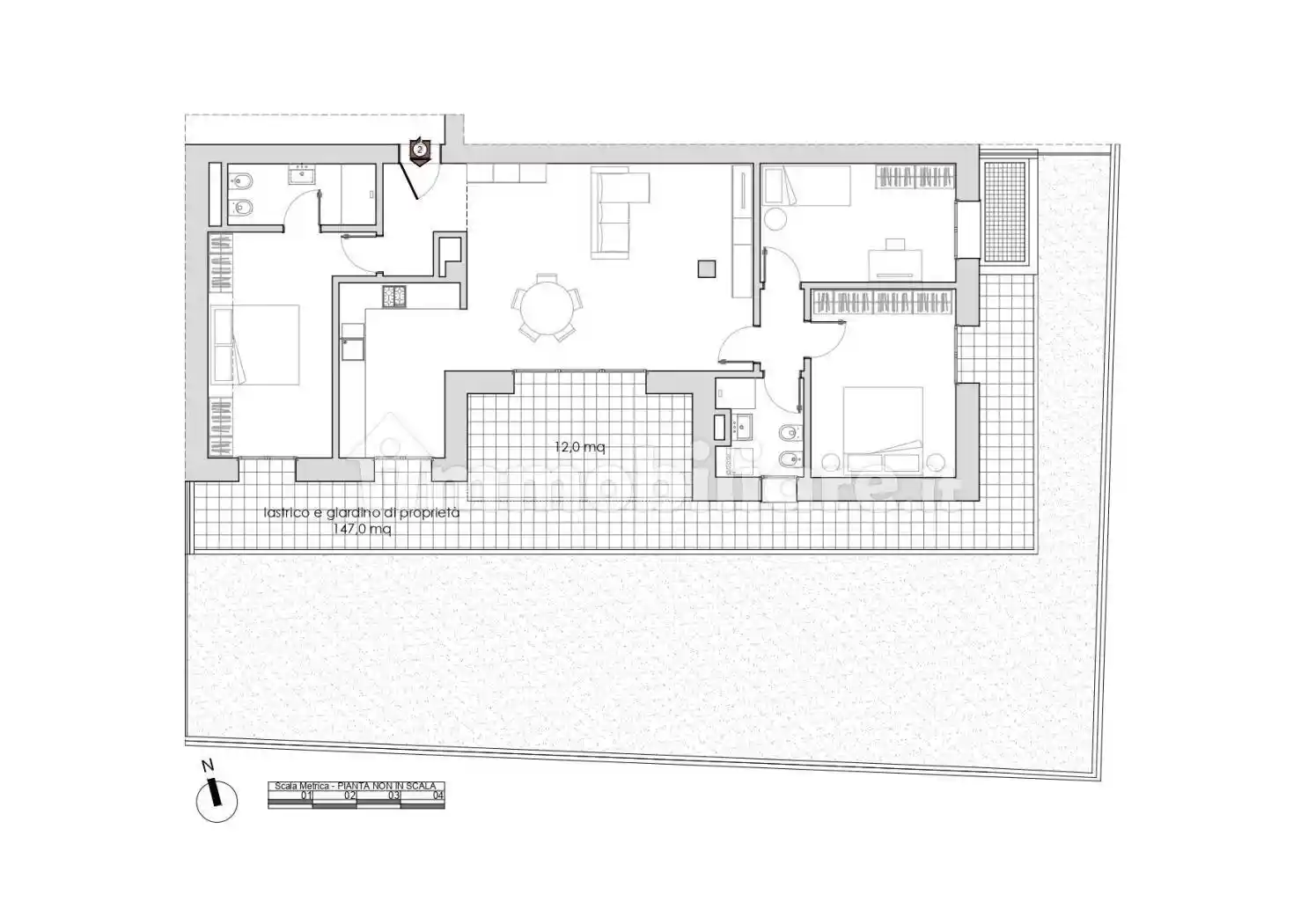
La presente unità abitativa è composta da: ingresso su sala con angolo cottura, disimpegno notte, due camere, due bagni e terrazzo.
Completano la proprietà una cantina ed un garage.

NESSUN COSTO DI MEDIAZIONE.

PER MAGGIOR INFORMAZIONI E VISIONE DEL PROGETTO VI INVITIAMO A FISSARE UN APPUNTAMENTO PRESSO I NOSTRI UFFICI CHIAMANDO LO 051/6130092 oppure 051/6133368, in alternativa potete mandare una mail a : agenziauno@loiimmobiliare.it oppure agenziadue@loiimmobiliare.it

Caratteristiche

Piano 2
Ascensore Si
Stato Nuovo / In costruzione
Riscaldamento Autonomo, a pavimento, alimentato a pompa di calore

Servizi e accessori

Esposizione interna Impianto tv centralizzato Infissi esterni in triplo vetro / PVC Porta blindata

Posizione

Referente

Studio Casalecchio Di Reno snc

Storico

Pubblicato 12 Mar 2026
Disattivato 04 Apr 2026
Sul mercato 71 giorni
ID Annuncio 127378609

Recensioni

Vedi tutte
S

Silvano Carpentieri

4.7

Ho scelto questa agenzia perché mi ha colpito la loro onestà nelle valutazioni e la capacità di ascolto, aspetti fondamentali per me in una trattativa. Sono stato seguito in modo professionale e senza...

T

Tiziano Cecchini

4.3

Ringrazio di cuore per l'ottimo servizio ricevuto! Sono stato molto soddisfatto della competenza e professionalità dimostrata durante tutta la trattativa, che ha reso il mio trasferimento in una zona...