Vendita Appartamento

Appartamento

Via Portuense, 110, Roma, Roma

Prezzo
Ottimo Affare: 50% sotto la media
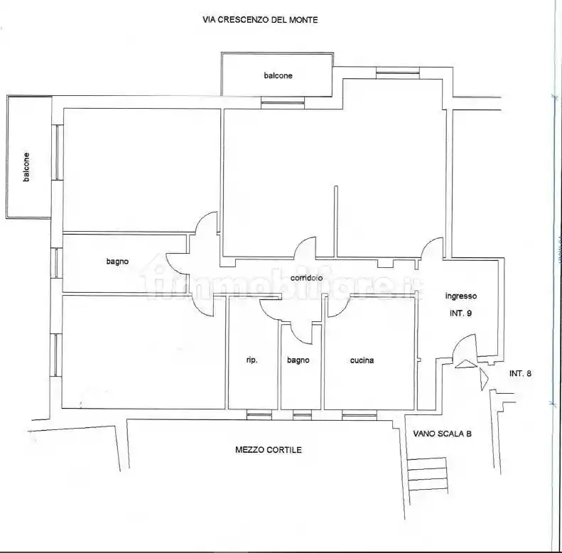
151
mq
5
Locali
3
Camere
2
Bagni

Recensisci questo Immobile

Devi essere registrato per lasciare una recensione.

Accedi

Nessuna recensione ancora. Sii il primo!

Descrizione

PORTUENSE TRASTEVERE - Via Portuense - In zona ben servita da negozi, supermercati, scuole, ecc. tra Viale Trastevere e Ponte Testaccio, proponiamo la vendita di un terzo piano molto luminoso di mq. 151 composto da ingresso, corridoio, salone doppio, 2 camere da letto matrimoniali, cameretta di servizio, cucina abitabile, due bagni di cui uno molto grande e divisibile, due balconi. Prezzo€. 485.000, 00 - Tel. 06/3200829 - Per informazioni e visite rivolgersi al Sig. Ippoliti al seguente numero di cellulare - 348/6510675.

Caratteristiche

Piano 3
Ascensore Si
Stato Da ristrutturare
Riscaldamento Centralizzato, a radiatori

Servizi e accessori

Cancello elettrico Esposizione esterna Fibra ottica Impianto tv centralizzato Infissi esterni in vetro / legno Porta blindata

Posizione

Zona: Trastevere (Testaccio, Trastevere)

Referente

simona ippoliti immobiliare

Storico

Pubblicato 12 Mar 2026
Disattivato 11 Apr 2026
Sul mercato 75 giorni
ID Annuncio 127390615

Recensioni

Vedi tutte
E

Elia Terranova

5.0

Grazie mille per l’ottima assistenza, sono molto soddisfatto del servizio ricevuto. Ho trovato rapidamente un appartamento più grande adatto alla mia famiglia, grazie alla tempestività e alle risposte...

G

Gennaro Silvestri

4.3

Se vuoi affidarti a un’agenzia immobiliare seria a Roma, ti consiglio di cercare quella che mette davvero le esigenze del cliente al primo posto. Quando ho deciso di trasferirmi in una zona più tranqu...