Vendita Appartamento

Appartamento

Via Circonvallazione Traversa 3, Taurianova, Reggio Calabria

Prezzo
Ottimo Affare: 61% sotto la media
90
mq
4
Locali
2
Camere
1
Bagni

Recensisci questo Immobile

Devi essere registrato per lasciare una recensione.

Accedi

Nessuna recensione ancora. Sii il primo!

Descrizione

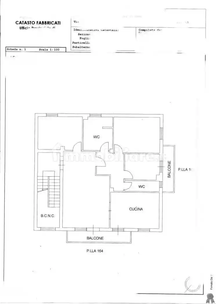
Riferimento: 4543641

Via Raffaele Terranova, 11, 89029 Taurianova Reggio di Calabria;

Abitazione di tipo civile posta al piano terra di un fabbricato a tre elevazioni fuori terra, ubicata nel comune di Taurianova, alla via Raffaele Terranova (ex via Circonvallazione traver4sa III) n. 11, identificata in Catasto Fabbricati al Foglio 51, particella 495, Sub 3, categoria A/3 - classe 1 – vani 6. La quota pignorata è pari a 1/1 della p.p.

Data di vendita: 19/05/2026
Offerta minima: € 20.630,00
Valore di stima: € 70.000,00

Studio di Fattibilità Pre-Asta

Offriamo consulenza legale completa per l'acquisto tramite asta giudiziaria.
I nostri servizi includono:

Ricerca dell'immobile secondo le esigenze del cliente
Studio di fattibilità pre-asta in fase di richiesta di visita
Studio di fattibilità del mutuo tramite banche convenzionate
Esame della perizia e documentazione correlata
Verifica legale

Preparazione e deposito delle offerte di partecipazione

Gestione della gara

Consulenza post-aggiudicazione fino all'emissione del decreto di trasferimento o del rogito

Vi invitiamo a fissare una prima consulenza gratuita presso una delle nostre 80 sedi sparse su tutto il territorio per ricevere maggiori informazioni sul processo di partecipazione ad un'asta giudiziaria, tempistiche, costi e modalità di acquisto.

Ulteriore documentazione disponibile verrà messa a disposizione durante la consulenza.

+39 06 4006 1824

Visitate il nostro sito www.asteflorio.com dove potrete trovare più di 20.000 Aste disponibili
NB: Le immagini potrebbero essere solo esempi e non rappresentare gli immobili reali. Le coordinate geografiche, fornite automaticamente da Google, possono contenere inesattezze. Segnalate eventuali errori e rimuoveremo o correggeremo gli annunci non conformi.

L'ESATTEZZA DI TUTTI I DATI PUBBLICATI INOLTRE SARA' CONFERMATA IN SEDE DI CONSULENZA.

Caratteristiche

Piano T
Ascensore No
Stato Buono / Abitabile
Riscaldamento Autonomo, a radiatori, alimentazione elettrica

Servizi e accessori

Cucina Esposizione doppia Impianto tv con parabola satellitare Infissi esterni in vetro / legno

Posizione

Referente

Aste Florio

Storico

Pubblicato 12 Mar 2026
Aggiornato 05 Apr 2026
Sul mercato 24 giorni
ID Annuncio 127394727

Recensioni

Vedi tutte
G

Giulia Lanzoni

4.0

Ricordo ancora il momento in cui ho visto il terreno e subito ho capito che era quello giusto. Sono stata subito seguita con pazienza e rapidità, trovando tutte le risposte alle mie domande senza stre...

D

Diana Geraci

4.3

Ho trovato l'investimento immobiliare perfetto grazie alla loro serietà e alla conoscenza approfondita del mercato locale. Sono stata seguita passo dopo passo, e mi hanno aiutata a fare scelte sicure...

B

Barbara Laurenti

4.0

Grazie mille per avermi seguita con tanta professionalità e competenza! Mi sono trovata davvero bene, sapevo di poter contare su un’agenzia affidabile e conosciuta bene il mercato locale, e così è sta...