Vendita Appartamento

Appartamento

Siena, Siena

Prezzo
87
mq
3
Locali
2
Camere
2
Bagni

Recensisci questo Immobile

Devi essere registrato per lasciare una recensione.

Accedi

Nessuna recensione ancora. Sii il primo!

Descrizione

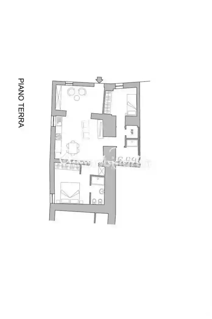
Rif.Ag. v11139 - Le Scotte In posizione strategica a Siena, prossimo all'azienda ospedaliera ,questo affascinante appartamento con superficie di 87 mq si presenta in uno stato eccellente, grazie alla recente ristrutturazione con consegna a giugno 2026
L'ingresso indipendente garantisce privacy e comfort, mentre il piano terra offre un accesso senza barriere, ed e' cosi' composto da soggiorno-cucina, due ampie camere e due bagni. Posto auto di proprieta'
Goditi il piacere di vivere in un ambiente efficiente.
Inoltre la ristrutturazione garantisce classe energetica B.
Spese condominiali mensili irrisorie, per un costo totale di 210.000 Euro.
Una splendida occasione da non lasciarsi sfuggire.

Caratteristiche

Piano T
Ascensore No
Stato Ottimo / Ristrutturato
Riscaldamento Autonomo, a radiatori, alimentato a metano

Servizi e accessori

Porta blindata

Posizione

Zona: Vico Alto - San Miniato (Petriccio, Acquacalda, Vico Alto, San Miniato)

Referente

Toscana Domus

Storico

Pubblicato 11 Mar 2026
Disattivato 02 Apr 2026
Sul mercato 71 giorni
ID Annuncio 127398589

Recensioni

Vedi tutte
D

Domenico Longo

4.7

Appena sono entrato in agenzia, quello che mi ha colpito di più è stata la puntualità negli appuntamenti, sempre puntuali e disponibili. Hanno seguito il mio acquisto con molta pazienza, spiegandomi o...

N

Nicola Re

4.7

Ho trovato il bilocale che cercavo a Siena grazie a un'agenzia molto professionale, cortese e trasparente. Mi hanno seguito passo dopo passo, aiutandomi a scegliere l'appartamento giusto e rendendo tu...

D

Dario Lorusso

4.7

Stavo cercando un appartamento più ampio per la mia famiglia in crescita e ho trovato grazie a loro. Ho apprezzato molto l’ampia scelta di immobili disponibili e la cortesia del personale, sempre disp...

G

Gianni Lama

4.3

Durante il processo mi sono sentito supportato e rassicurato, grazie alla serietà dimostrata dall'agenzia. Hanno seguito ogni passaggio con professionalità, aiutandomi anche nella fase di mutuo, cosa...