Vendita Appartamento

Appartamento

Corso Torino, 79, Buttigliera Alta, Torino

Prezzo
105
mq
4
Locali
2
Camere
1
Bagni

Recensisci questo Immobile

Devi essere registrato per lasciare una recensione.

Accedi

Nessuna recensione ancora. Sii il primo!

Descrizione

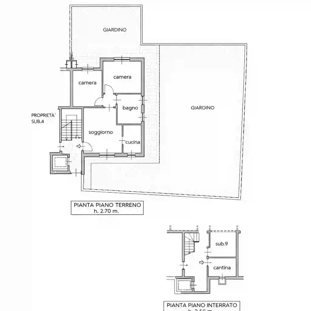
Caseinpiemonte Rivoli 011 956 15 00 propone ottimo appartamento con GIARDINO PRIVATO E PATIO in Buttigliera Alta - Ferriera precisamente Corso Torino n. 79 a Euro 185.000 trattabili. Zona Ferriera 5 vani di circa 98 mq circa.
Recente costruzione, palazzina signorile in paramano, appartamento al Piano Terra, libero su tre lati, grande giardino privato con alberi da frutto e ampio patio/terrazzo.
Composto da ingresso living su sala, cucinotta, disimpegno, due belle camere da letto e grande bagno con vasca. Cantina. Completano la proprietà due POSTI AUTO interni.
Riscaldamento autonomo. Esposizione Nord - Est - Sud - Ovest
Anno costruzione 2004.
Comodo alle scuole, ai mezzi pubblici, Stazione Ferroviaria di Avigliana ed alle tangenziali.
A.C.E./A.P.E.: C I.p.e.: 65 kwh
Tutti i dati, le informazioni, i metri quadri riportati ed eventuali rendering presenti, sono da ritenersi affidabili, ma sono puramente indicativi e raffigurativi, quindi le presenti informazioni non costituiscono elemento contrattuale.
FIERI DI VENDERE ANCHE CASA VOSTRA: PROVVIGIONE 1%
CONTATTATECI: caseinpiemonte@caseinpiemonte.it
www.caseinpiemonte.it
PER VOI!: RIVOLI Corso Susa 235 / 237 tel. 011 956 15 00

Caratteristiche

Piano T
Ascensore Si
Stato Ottimo / Ristrutturato
Riscaldamento Autonomo, a radiatori, alimentato a metano

Servizi e accessori

Cancello elettrico Esposizione doppia Fibra ottica Impianto di allarme Impianto tv singolo Infissi esterni in doppio vetro / legno Porta blindata VideoCitofono

Posizione

Referente

CASEINPIEMONTE - Agenzia immobiliare di Rivoli e Alpignano

Storico

Pubblicato 13 Mar 2026
Aggiornato 21 May 2026
Sul mercato 71 giorni
ID Annuncio 127420371

Recensioni

Vedi tutte
E

Elena Gargano

5.0

Stavo cercando una casa tranquilla a Rivoli dove potermi godere la pensione, e sono stata davvero fortunata a trovare questa agenzia. Mi sono sentita seguita e aiutata in ogni fase, dalla scelta alla...

D

Domenico Testa

5.0

Ho trovato un team molto competente che mi ha seguito con professionalità durante tutta la trattativa di vendita della casa. Sono stato aiutato a gestire ogni aspetto, dalla valutazione alla documenta...

D

Donatella Della Valle

5.0

Stavo cercando un appartamento in affitto a Rivoli perché mi trasferivo per lavoro e ho trovato quello perfetto grazie a questa agenzia. Sono stata davvero contenta della professionalità e della puntu...