Vendita Villa

Villa

Cecina, Livorno

Prezzo
120
mq
5
Locali
3
Camere
2
Bagni

Recensisci questo Immobile

Devi essere registrato per lasciare una recensione.

Accedi

Nessuna recensione ancora. Sii il primo!

Descrizione

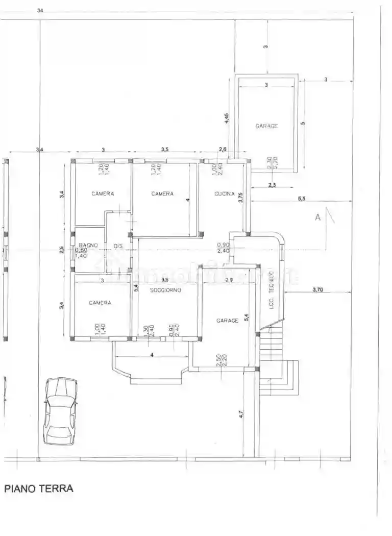
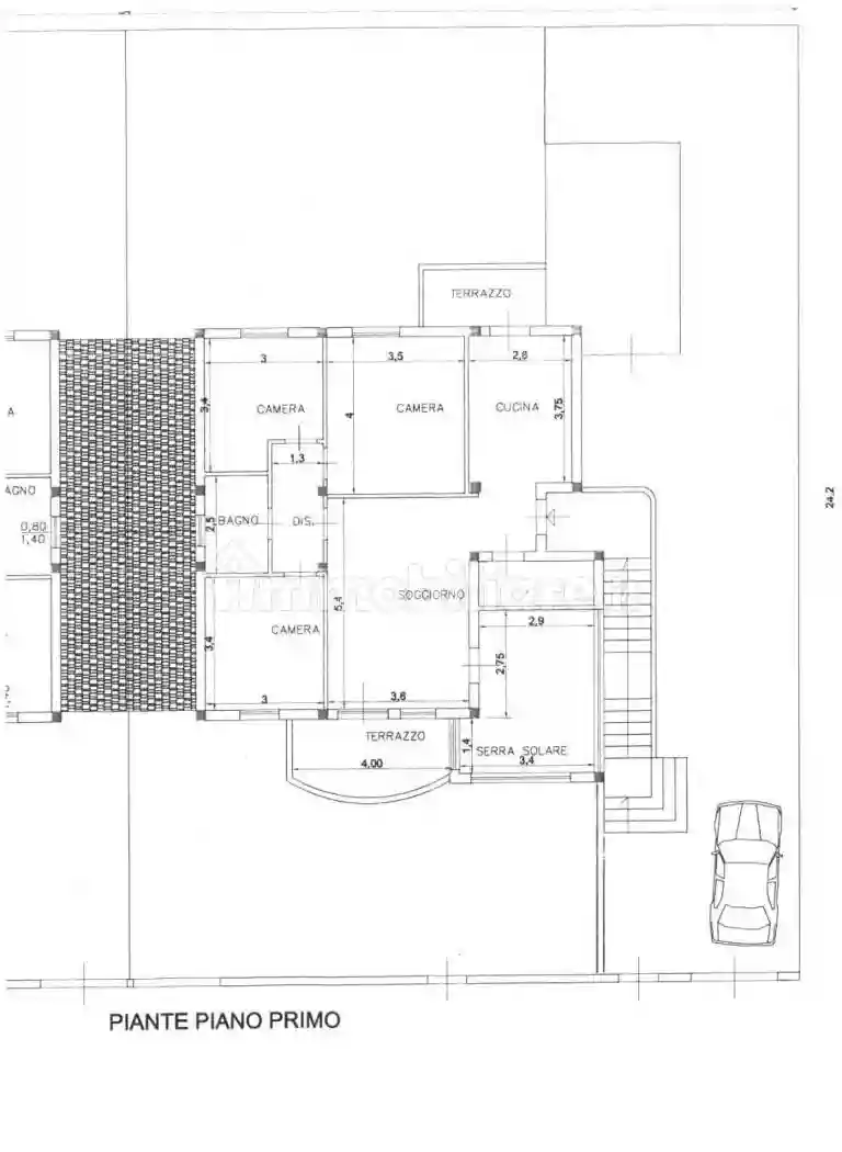
Cecina periferia sud in villa quadrifamiliare, appartamenti modello villetta con giardini indipendenti e terrazza abitabili massimo coeficente energetico,
tutte le ultime novità in base alle normative di costruzione, appartamenti indipendenti piano terra o piano primo, composti da cucina abitabile ,tre camere ,doppi servizi,
serre solari ,garage-
Pagamento in avanzamento lavori-
Nessuna spesa condominiale-
Possibiltà di permuta con il vostro appartamento usato-
Disponibile un piano terra di mq 86 composto da ampio portico d'ingresso, soggiorno, cucina abitabile, una camere matrimoniale e due camerine, bagno più un locale tecnico nel quale è possibile realizzare un secondo bagno, giardino di 160 mq e garage.

Caratteristiche

Piano T
Ascensore No
Stato Nuovo / In costruzione
Riscaldamento Autonomo, a radiatori, alimentato a metano

Servizi e accessori

Impianto di allarme Porta blindata VideoCitofono

Referente

Agenzia Immobiliare Europa di Gattai Goffredo

Storico

Pubblicato 13 Mar 2026
Aggiornato 26 May 2026
Sul mercato 75 giorni
ID Annuncio 127420969