Vendita Villa Luxury

Villa

via sandro pertini, Forte dei Marmi, Lucca

Prezzo
Buon Prezzo: 23% sotto la media
730
mq
5+
Locali
8
Camere
3+
Bagni

Recensisci questo Immobile

Devi essere registrato per lasciare una recensione.

Accedi

Nessuna recensione ancora. Sii il primo!

Descrizione

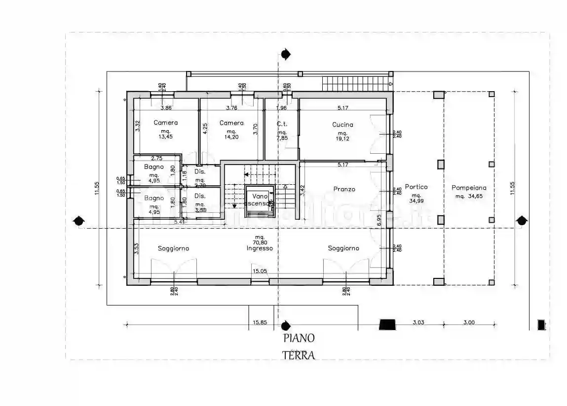
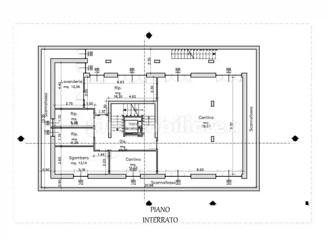
villa unifamiriare in fase di ultimazione su di un lotto di circa 2.500 mq realizzata su quattro livelli, piano interrato, piano terra, piano primo e piano sottotetto. il piano interrato si sviluppa su una superficie lorda di 200 mq a cui vanno aggiunti 80 mq fra spazi esterni e scannafossi. in questo piano trovano spazio la lavanderia, la cantina, bagni, alcuni servizi come palestra e zona benessere oltre ad un ampio locale per intrattenimento. una scala interna con ascensore e una scala esterna collegano questo piano al piano terra. al piano terra, di 180 mq si trovano cucina, soggiorno, pranzo oltre a 2 camere con 2 bagni e una centrale tecnica. lo spazio esterno e' completato da loggia e pompeiana di circa 70 mq, piscina di circa 100 mq oltre a parcheggio per 6 auto. al primo piano, di 170 mq, si trovano 6 camere e 4 bagni, collegati con il piano terra da scala e ascensore interno, oltre a 4 balconi a servizio delle camere. piano sottotetto di 180 mq collegato da scaletta interna con il piano primo. *per motivi di privacy l'indirizzo in scheda è indicativo e l'immobile è comunque situato nelle immediate vicinanze* la nostra agenzia opera sul mercato immobiliare da oltre quarant’anni, dapprima a reggio emilia e successivamente con gli uffici di forte dei marmi. ci occupiamo di compravendite, locazioni ed assistenza tecnica. tramite una fitta rete di collaborazioni siamo in grado di accompagnare il cliente in tutte le fasi della trattativa, dalla ricerca dell’immobile più adatto alle sue esigenze fino al suo effettivo acquisto. potete contattarci telefonicamente, e saremo lieti di incontrarvi di persona presso i nostri uffici.

Caratteristiche

Ascensore No
Stato Nuovo / In costruzione
Riscaldamento Autonomo, a pavimento, alimentato a gas

Servizi e accessori

Armadio a muro Caminetto Cancello elettrico Esposizione doppia Fibra ottica Idromassaggio Impianto di allarme Impianto tv centralizzato Infissi esterni in doppio vetro / PVC Piscina Porta blindata Taverna VideoCitofono

Posizione

Referente

IMMOBILIARE TIMAVO Forte dei Marmi S.r.l.

Storico

Pubblicato 13 Mar 2026
Aggiornato 06 Apr 2026
Sul mercato 25 giorni
ID Annuncio 127421667

Recensioni

Vedi tutte
L

Luciana Riva

4.7

Se state cercando un’agenzia immobiliare a Forte dei Marmi, vi consiglio di sceglierne una che vi segua passo passo con chiarezza e precisione. Sono stata molto soddisfatta del supporto che ho ricevut...

N

Nunzia Filippini

4.3

Se cercate un investimento a Forte dei Marmi, questa agenzia è fantastica. Mi hanno seguita passo passo, accompagnandomi nelle visite e aiutandomi a trovare l’immobile perfetto, anche tra molte opzion...

C

Claudia Laurenti

4.0

Ho scelto questa agenzia perché mi ha colpito la loro disponibilità e la flessibilità negli orari, che mi ha permesso di seguire tutto con calma e senza stress. Sono stata molto soddisfatta della cura...

L

Lucia Curci

4.0

Ricordo ancora quando sono arrivata in agenzia e avevo bisogno di un bilocale in fretta. Sono stata subito colpita dalla loro tempestività nel rispondere e dalla pazienza con cui mi hanno seguito in o...