Vendita Appartamento

Appartamento

Piazza Sandro Pertini, , 7, Pontassieve, Firenze

Prezzo
Ottimo Affare: 58% sotto la media
117
mq
5+
Locali
3
Camere
2
Bagni

Recensisci questo Immobile

Devi essere registrato per lasciare una recensione.

Accedi

Nessuna recensione ancora. Sii il primo!

Descrizione

PROPONIAMO TRAMITE ASTA
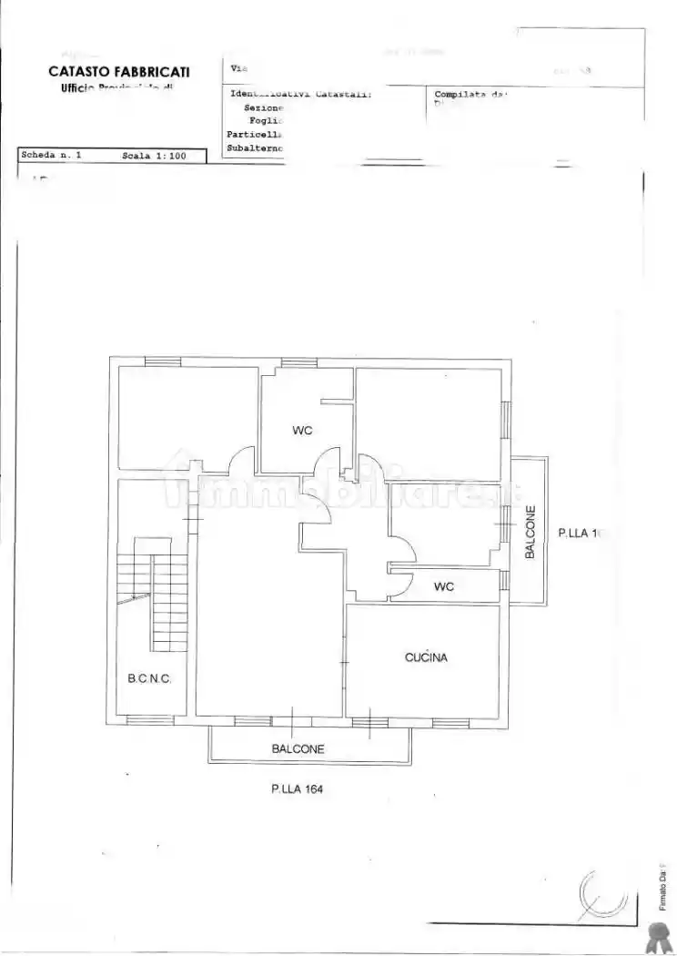
Piena proprietà di un appartamento ad uso civile abitazione con ingresso ubicato al civico 7 di Piazza Sandro Pertini e autorimessa. L'appartamento è composto da vani 6,5 ; due camere matrimoniali e una cameretta; due bagni uno con vasca e uno con doccia; Terrazze perimetrali che circondano interamente l'appartamento e una terrazza tergale. Completa l'appartamento un garage al piano seminterrato. Il tutto in ottime condizioni.

Acquista in Asta con Sicurezza e Tranquillità

Lo Studio Desideacasa ti offre un servizio di consulenza e assistenza a 360 gradi per l'acquisto di immobili in asta per privati e agenzie immobiliari con sede a Firenze, Empoli, Lari e Pisa

Il nostro servizio comprende:

- Ricerca degli immobili: troveremo insieme le migliori opportunità di acquisto.
- Valutazione delle criticità: il nostro team di esperti analizzerà gli immobili per identificare eventuali problemi e valutare il loro impatto sul prezzo di acquisto.
- Gestione dell'asta: ci occuperemo di tutte le procedure di asta, garantendo la tua partecipazione e il rispetto delle scadenze.
- Saldo prezzo e burocrazia: ci prenderemo cura di tutti gli aspetti amministrativi e finanziari necessari per l'acquisto, inclusi il saldo del prezzo e l'ottenimento delle chiavi.

Perché sceglierci?

- Esperienza e competenza: il nostro team di esperti ha una lunga esperienza nel settore immobiliare e nelle aste.
- Trasparenza e sicurezza: lavoriamo con trasparenza e professionalità, garantendo la tua sicurezza e tranquillità durante tutto il processo di acquisto.

Contattaci 3751270590

Se sei interessato a scoprire come possiamo aiutarti ad acquistare il tuo prossimo immobile in asta, contattaci oggi stesso per fissare un appuntamento e discutere le tue esigenze."
Dettagli principali

Caratteristiche

Piano T
Stato Buono / Abitabile
Riscaldamento Autonomo

Posizione

Referente

Desidea Casa

Storico

Pubblicato 13 Mar 2026
Disattivato 24 Apr 2026
Sul mercato 68 giorni
ID Annuncio 127424865