Indietro
Vendita Casa indipendente

Casa indipendente

Via degli Alpini, Vigolo, Bergamo

Prezzo
119
mq
5
Locali
2
Camere
1
Bagni

Recensisci questo Immobile

Devi essere registrato per lasciare una recensione.

Accedi

Nessuna recensione ancora. Sii il primo!

Descrizione

NUOVA PROPOSTA

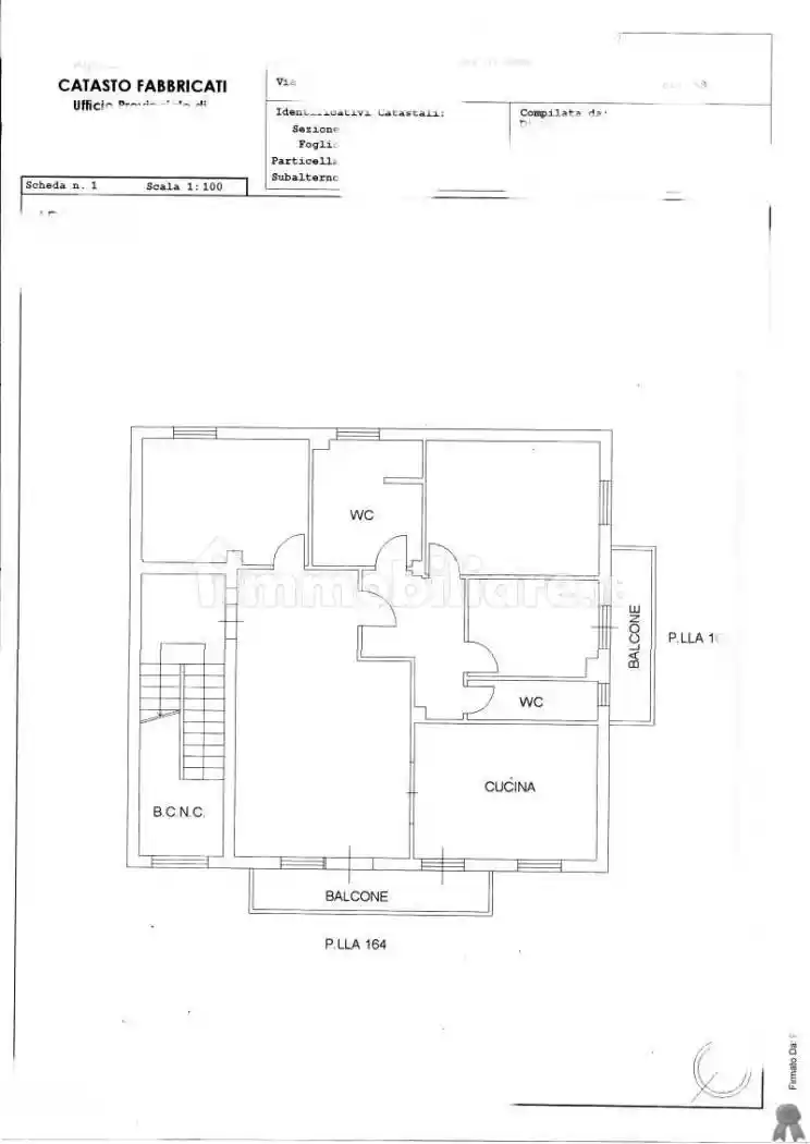
Abitazione situata a Vigolo (BG), in Via degli Alpini, disposta su due piani. L’ingresso si apre direttamente sul soggiorno collegato alla cucina; un disimpegno conduce alla zona notte composta da camera padronale, seconda camera attualmente suddivisa in due vani e bagno. È inoltre presente un locale adibito a taverna con cucina e un ripostiglio utilizzato come dispensa, con accesso dalla corte comune. Completano la proprietà un’autorimessa coperta di circa 42 mq e un posto auto coperto di circa 35 mq
In vendita una quota di proprietà ed una quota di nuda proprietà
Per te la possibilità di avere un preventivo per il mutuo a condizioni vantaggiose con i nostri partner.
Ulteriori dettagli, foto degli interni, planimetrie e altre info, se disponibili, saranno consultabili previo appuntamento nella sede di BERGAMO con MICHELE che inoltre ti informerà sulle possibilità di aggiudicarti questo affare.
L'immobile pubblicato al momento è sottoposto a procedura di vendita legale; Gescom srl è specializzata nella ricerca e pianificazione di investimenti immobiliari secondo innovative strategie di acquisto. Contattaci subito potrai valutare assieme a un nostro tecnico canali distinti di acquisto dell’immobile, procedura di vendita diretta senza ricorrere all’asta (d.lgs. 149/2022) e ancora stralcio immobiliare. Le informazioni sopra riportate non sostituiscono l'avviso pubblicato dal Tribunale competente ne’ l'integrale gestione da parte del delegato designato. Il testo e le specifiche indicate nella presente pagina sono generate automaticamente attraverso l'utilizzo di software e/o da A. I., Gescom srl invita a verificare le formazioni e i materiali multimediali sui canali ufficiali, declinando fin d'ora ogni responsabilità su eventuali errori o incongruenze.
Gescom Italia srl leader negli stralci immobiliari e nella consulenza tecnico legale, non si occupa di attività di intermediazione imm. di cui alla legge 39/89.
Cl. energ. da verificare.
Le foto pubblicate nel presente annuncio sono indicative e non esaustive della tipologia, qualità, consistenza e indicazione geografica dell'immobile.

Caratteristiche

Ascensore No
Stato Buono / Abitabile
Riscaldamento Autonomo, alimentato a metano

Servizi e accessori

Cucina Esposizione sud Impianto di allarme Porta blindata

Posizione

Referente

GESCOM

Storico

Pubblicato 14 Mar 2026
Disattivato 03 May 2026
Sul mercato 68 giorni
ID Annuncio 127426814

Recensioni

Vedi tutte
I

Ivano Coppola

5.0

Ho comprato una casa al mare e sono davvero felice del risultato. L’agenzia è stata rapida e molto competente nella trattativa, mi ha seguito passo passo e ha fatto tutto con grande professionalità. È...

I

Ivan Prandini

4.7

Durante il processo mi sono sentito molto seguito e sicuro, grazie alla professionalità dell’agenzia. Ho trovato facilmente il magazzino perfetto per la mia azienda tra un’ampia scelta di immobili dis...