Vendita Villa

Villa

Via Walter Tobagi, Battuda, Pavia

Prezzo
140
mq
4
Locali
3
Camere
3
Bagni

Recensisci questo Immobile

Devi essere registrato per lasciare una recensione.

Accedi

Nessuna recensione ancora. Sii il primo!

Descrizione

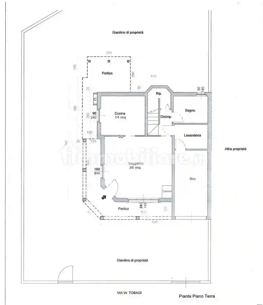
in contesto Residenziale di sole Ville, proponiamo Villa Bi-Familiare anno di Costruzione 2007 ma con Lavori di ristrutturazione 110 nel 2023 Cappotto Termico e Pannelli Fotovoltaici 6kw con rete anti-Piccioni e Batteria Accumulo 8kw, Rifiniture con Mattoni a Vista e doppio zoccolino esterno, disposta su 2 piani, Ingresso Pedonale con struttura in mattoni a vista e Tettoia, Muro Perimetrale anch'esso con Mattoni a Vista, Cancello Carraio Scorrevole e pavimentazione fronte Box per Posto Auto, Box auto con Basculante color Bianco. Abitazione al P.Terra: Portico con Ingresso, Porta Blindata color Blu Petrolio, Soggiorno di 26 Mq con Pavimento in Gres Porcellanato con Mosaico, Grande Finestra ad arco e porta-
Finestra per accedere al Giardino, Camino in muratura con rivestimento in Marmo con
appoggio TV fornito di cassetti, Ampia Cucina Abitabile 14mq con Porta-Finestra per
accedere a Spazioso Portico e Zona Barbecue sul Retro per Pranzi all'aperto, Disimpegno, comodo Ripostiglio nel Sottoscala, Bagno con Doccia, Locale Lavanderia con attacco
Lavatrice Asciugatrice e Pilozzo/Lavatoio con spazio per armadiatura e stendino. Scala per
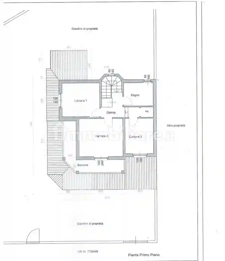
accedere al primo piano illuminata da finestra e con ringhiera in Ferro Battuto. 1°Piano:
Disimpegno, Bagno con Vasca ad angolo con rivestimenti in mosaico e Termo-arredo,
funzionale Ripostiglio per riporre Asciugamani e Biancheria da Letto, Camera Singola ora
adibita a Studio, Camera Doppia, Ampia Camera Matrimoniale con Balcone. Giardino su 3
lati piantumato e completamente circondato da siepe perimetrale, Impianto di Illuminazione ed Impianto di Irrigazione, Varie Fontane, Pavimentazione Solarium, Porta Blindata, Riscaldamento autonomo, Aria Condizionata, Doppi Vetri, Zanzariere, Inferriate pieghevoli in Ferro Battuto su tutte le Finestre, Video-sorveglianza. Tenuta Benissimo DA VEDERE. Vendita Tramite Privato (no I.V.A del 4%) Per Info e Visite 3402704803 dal Lunedi al Sabato dalle h.9,00 alle h.12,30 e dalle 14,30 alle 19,30

Caratteristiche

Ascensore No
Stato Ottimo / Ristrutturato
Riscaldamento Autonomo, a radiatori, alimentato a metano

Servizi e accessori

Caminetto Cancello elettrico Esposizione interna Impianto di allarme Impianto tv singolo Infissi esterni in doppio vetro / legno Porta blindata

Posizione

Referente

Gatti Silvio

Storico

Pubblicato 15 Mar 2026
Aggiornato 27 May 2026
Sul mercato 73 giorni
ID Annuncio 127471588

Recensioni

Vedi tutte
F

Flavia Elia

4.3

Durante il processo mi sono sentita davvero rassicurata e ben seguita, grazie alla loro pazienza e attenzione alle mie esigenze. Sono stata colpita dalla tempestività nelle risposte e dalla capacità d...

V

Veronica Leoni

4.3

Le mie esperienze precedenti con agenzie immobiliari erano state abbastanza deludenti, ma questa volta è stato totalmente diverso. Mi sono sentita veramente seguita e supportata in ogni fase, dalla sc...