Vendita Appartamento

Appartamento

Casargo, Casargo, Lecco

Prezzo
Ottimo Affare: 35% sotto la media
60
mq
1
Locali
1
Camere
1
Bagni

Recensisci questo Immobile

Devi essere registrato per lasciare una recensione.

Accedi

Nessuna recensione ancora. Sii il primo!

Descrizione

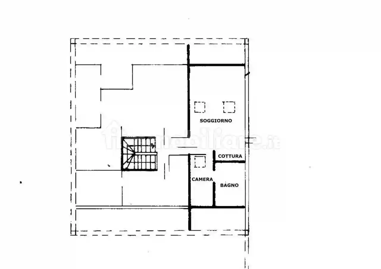
Appartamento di 60mq +box incluso ad Indovero (Casargo) situato in Alta Valsassina Appartamento ad uso civile abitazione a piano secondo (mai abitato e in ottimo stato), a parte di una palazzina sita in Comune di Casargo, frazione Indovero (Alta Valsassina), composto da due locali, oltre cucina, bagno, un balcone e corridoio (totale appartamento circa mq.60), con annesso un box rimessa auto pertinenziale incluso nel prezzo e disponibili posti auto esterni x parcheggio dei condomini. L'appartamento è dotato di caldaia autonoma (nuova e mai utilizzata) e viene venduto arredato. Gli impianti vengono garantiti conformi all'epoca della loro realizzazione, ma privi di certificazioni relative. Vendita tra privati, no Agenzie. Prezzo Euro 39.000 (incluso il box). Visionabile solo nei weekend previo appuntamento. tel. 3771194175<br><br>Ref:79826

Caratteristiche

Piano 2
Ascensore No
Riscaldamento Autonomo, a radiatori

Posizione

Referente

Home Prime sas

Storico

Pubblicato 14 Mar 2026
Disattivato 06 Apr 2026
Sul mercato 68 giorni
ID Annuncio 127478900

Recensioni

Vedi tutte
L

Luciano Fiori

4.3

Ho scelto questa agenzia perché mi avevano parlato della loro puntualità e professionalità e devo dire che si sono confermati. Sono stato seguito con grande attenzione e competenza durante tutta la tr...