Vendita Appartamento

Appartamento

Via Romito, 38, Trani, Barletta-Andria-Trani

Prezzo
50
mq
2
Locali
1
Camere
1
Bagni

Recensisci questo Immobile

Devi essere registrato per lasciare una recensione.

Accedi

Nessuna recensione ancora. Sii il primo!

Descrizione

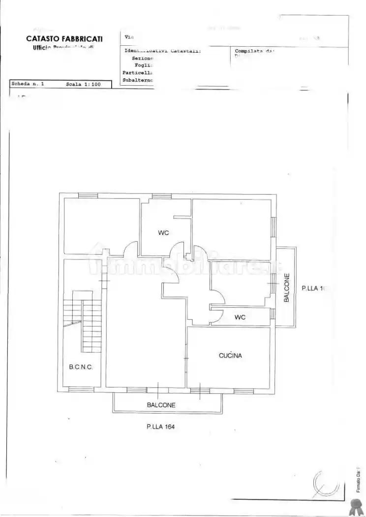
Vendesi in asta giudiziaria, appartamento di 50 mq complessivi, già LIBERO, posto al terzo piano senza ascensore ed ubicato nel centro storico di Trani, precisamente in Via Romito 38, zona suggestiva tra vicoli e palazzi storici. A 10 min a piedi dal Duomo e dal porto turistico, oltre che a 12 min dalla stazione ferroviaria.
IDEALE SIA PER USO ABITATIVO CHE PER USO INVESTIMENTO.

VALORE DI PERIZIA - STIMA DI MERCATO € 99.000

L'appartamento, attualmente composto da 2 vani e trasformabile in 3 vani, è in discrete condizioni, da ammodernare, ed è composto da
- soggiorno,
- cucina,
- disimpegno,
- camera da letto,
- bagno.

OTTIMO RAPPORTO €/mq considerando le quotazioni della zona.

Il prezzo a cui ci si riferisce è l’OFFERTA MINIMA da presentare per partecipare.

CONTATTACI AL N. 375.785. 21.70 PER FISSARE UN APPUNTAMENTO PRESSO LA NOSTRA SEDE DI BARI.

Siamo anche disponibili presso le nostre sedi di CAGLIARI, LECCE, TARANTO, LIVORNO, FIRENZE, EMPOLI, BRESCIA E MILANO.

PERCHÉ CONVIENE DAVVERO?

- NESSUN onere notarile
- Possibilità MUTUO fino al 100% (previa consulenza)
- Agevolazioni fiscali
- Possibilità di PRE-ASTA / SALDO E STRALCIO

I dati inseriti sono stati estratti dalla perizia e dell'avviso di vendita.

Il team di AVVOCATI e PROFESSIONISTI IMMOBILIARI di Valore Aggiunto Consulting sarà lieto di spiegarvi i vantaggi di questa ed altre opportunità presenti, offrendovi il servizio più completo sul mercato, prevenendo ogni problema.

Infatti, ci occuperemo di:

•Effettuare uno STUDIO APPROFONDITO della perizia e degli altri documenti della procedura
•Organizzare per voi il SOPRALLUOGO sull’immobile
•Pianificare e redigere l’OFFERTA DI ACQUISTO (anche per procedure telematiche)
•Consigliarvi le MIGLIORI STRATEGIE per avere successo in sede di gara
•Vi indichiamo convenzioni per il MUTUO
•Vi supportiamo nelle scelte di intestazione della proprietà
•Vi assistiamo nella LIBERAZIONE dell'immobile
•Prepariamo l’ANALISI DI MERCATO sull’immobile
•Pianifichiamo l’aspetto FISCALE dell’acquisto
•Valutazione fattibilità SALDO e STRALCIO, qualora ne ricorrano i presupposti.

…il tutto accompagnandovi fino alla CONSEGNA DELLE CHIAVI dell’immobile!

Ci piacerebbe mostrarvi più da vicino come possiamo esservi d’aiuto per eliminare quelle perdite di tempo e criticità che queste attività spesso comportano.

Per visitare il nostro sito aprire il LINK in fondo alla pagina.

CONTATTARE SE INTERESSATI.

Caratteristiche

Piano 3
Ascensore No
Stato Buono / Abitabile

Posizione

Referente

Valore Aggiunto Consulting

Storico

Pubblicato 15 Mar 2026
Disattivato 12 May 2026
Sul mercato 67 giorni
ID Annuncio 127485452

Recensioni

Vedi tutte
D

Domenico Savini

5.0

Ricordo ancora il momento in cui ho deciso di vendere la casa dopo il divorzio, e devo dire che sono stato davvero fortunato a trovare un’agenzia così seria ed efficiente. Mi sono sentito seguito pass...

F

Fabio Resta

4.7

Appena sono entrato in agenzia, sono stato colpito dalla professionalità e da come mi hanno seguito passo passo nel trovare l’appartamento giusto. Hanno rispettato i miei tempi e mi hanno aiutato a ca...

C

Cristian Mazzi

4.3

Ringrazio davvero per avermi seguito con trasparenza e rapidità nella ricerca del mio bilocale a Bari. Ho trovato la soluzione perfetta in breve tempo grazie alla professionalità e all’efficienza dell...