Indietro
Vendita Casa indipendente

Casa indipendente

Via Micieli, 35, Rosolini, Siracusa

Prezzo
Ottimo Affare: 27% sotto la media
96
mq
3
Locali
3
Camere

Recensisci questo Immobile

Devi essere registrato per lasciare una recensione.

Accedi

Nessuna recensione ancora. Sii il primo!

Descrizione

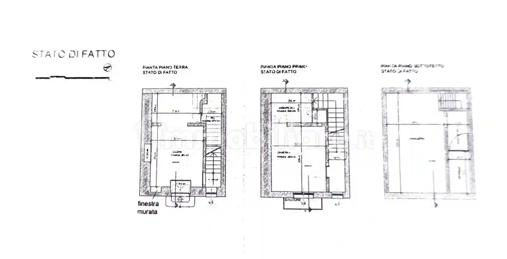
Ci troviamo nel centro storico di Rosolini, precisamente in Via Micieli e dispongo dell'incarico alla vendita di una struttura indipendente posta su tre livelli e decisamente da ristrutturare. L'immobile viene costruito nel 1940 e presenta tutta la documentazione necessaria per andare immediatamente al rogito anche con l'ausilio di un mutuo bancario. Vi è anche la possibilità di usufruire di un progetto approvato dal Comune di Rosolini e redatto dall' Architetto Giusi Rivoira di uno studio di Torino che è valido fino al 2029. Per ulteriori informazioni ed eventualmente per concordare un appuntamento per visionare la struttura, non esitate a contattarci telefonicamente oppure venite a trovarmi in ufficio in Via Filippo Cordova 5 a Siracusa. Massimo - AGENZIA META IMMOBILI.

Caratteristiche

Ascensore No
Stato Da ristrutturare

Servizi e accessori

Esposizione esterna Mansarda

Posizione

Referente

Meta Immobili

Storico

Pubblicato 15 Mar 2026
Disattivato 03 Apr 2026
Sul mercato 67 giorni
ID Annuncio 127506274

Recensioni

Vedi tutte
G

Giorgio Bettini

5.0

Dopo essermi trasferito a Siracusa per lavoro, cercavo un bilocale che fosse comodo e ben posizionato. L’agenzia ha dimostrato di conoscere bene il mercato locale, aiutandomi a trovare subito qualcosa...

A

Aldo Bianchi

4.7

Ho scelto questa agenzia perché mi ha colpito la loro trasparenza e pazienza nel seguire la mia ricerca. Cercavo un appartamento vista mare a Siracusa e grazie alla loro professionalità sono stato seg...

A

Angelo Mereu

4.7

Ho scelto questa agenzia perché mi ha colpito la loro professionalità e la flessibilità negli orari, sempre pronti ad ascoltarmi senza pressioni. Sono stato molto soddisfatto perché hanno capito subit...

G

Gianni Mancini

4.7

Il panorama mozzafiato sul mare che si godeva dall’appartamento ha reso l’esperienza davvero speciale. Sono stato seguito con molta pazienza durante tutte le visite, e ho apprezzato l’accompagnamento...