Vendita Appartamento

Appartamento

Via Della Rocca, 12, Pergola, Pesaro Urbino

Prezzo
Ottimo Affare: 73% sotto la media
82
mq
3
Locali
1
Camere
1
Bagni

Recensisci questo Immobile

Devi essere registrato per lasciare una recensione.

Accedi

Nessuna recensione ancora. Sii il primo!

Descrizione

Acquisto Assistito in Asta Giudiziaria
Per maggiori proposte visita il sito dell’agenzia: www.asteagency.com

Verifica fattibilità d’acquisto in PRE-ASTA

DATA ASTA : 19/05/26

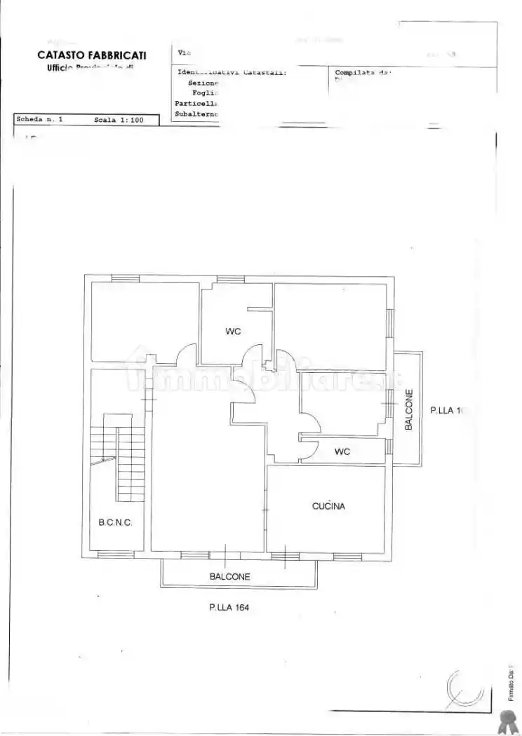
UBICAZIONE E DESCRIZIONE: Via Della Rocca, 12, Pergola, PU.

Descrizione sintetica: Appartamento al primo piano composto zona giorno con angolo cottura, da questa si accede alla zona notte composta da un corridoio, una camera di circa 13,5 mq(singola), un ripostiglio di circa mq 5,6 privo di finestre, un bagno anch’esso privo di finestre esterne, e un secondo ripostiglio di circa mq.4,00.

Aste Agency SRL offre il servizio di assistenza per acquistare tramite un mutuo con banche convenzionate. Assiste ed indirizza, dall’aggiudicazione fino alla consegna delle chiavi.

PERCHE’ COMPRARE ALL’ASTA:
- Acquisto sicuro tramite Tribunale;
- Prezzo inferiore rispetto al mercato libero, quindi rata del mutuo più bassa;
- Banche convenzionate con i Tribunali;
- Nessun vincolo di prezzo nella rivendita e nella locazione.

Le Aste Giudiziarie sono soluzioni abitative a prezzi unici, in quanto si compera ad un prezzo inferiore, paragonato alla realtà proibitiva del mercato libero, e l’investimento immobiliare risulta essere sicuramente conveniente.
Per maggiori delucidazioni vi invitiamo a contattarci. Sarà nostra premura fissare un appuntamento in studio e trasferirvi tutte le informazioni necessarie per un’attenta e serena valutazione.

ASTE AGENCY SRL – Contattateci per un appuntamento presso uno dei nostri uffici o in videochiamata.

Caratteristiche

Piano 1
Ascensore No
Stato Buono / Abitabile
Riscaldamento Autonomo, a radiatori, alimentato a metano

Servizi e accessori

Cucina Porta blindata

Posizione

Referente

Home Agency

Storico

Pubblicato 19 Mar 2026
Aggiornato 04 Apr 2026
Sul mercato 17 giorni
ID Annuncio 127516238

Recensioni

Vedi tutte
W

Walter La Rosa

4.7

Se cercate un’agenzia affidabile per investimenti immobiliari, vi consiglio di rivolgervi a questa squadra: hanno una conoscenza approfondita del mercato locale e sono incredibilmente precisi nella ge...