Indietro
Vendita Villetta a schiera

Villetta a schiera

Via Giardini Sud, 311, Serramazzoni, Modena

Prezzo
Buon Prezzo: 17% sotto la media
85
mq
4
Locali
2
Camere
1
Bagni

Recensisci questo Immobile

Devi essere registrato per lasciare una recensione.

Accedi

Nessuna recensione ancora. Sii il primo!

Descrizione

Licenza ai sensi ex art. 115 TULPS rilasciata dalla Questura di Alessandria in data 22/06/2022

Asteadvisor propone * :

LOTTO UNICO: Riferimento MO132/2024 - DATA ASTA: 12/05/2026 - ore 11:30
Serramazzoni (MO) - Via Giardini Sud 311

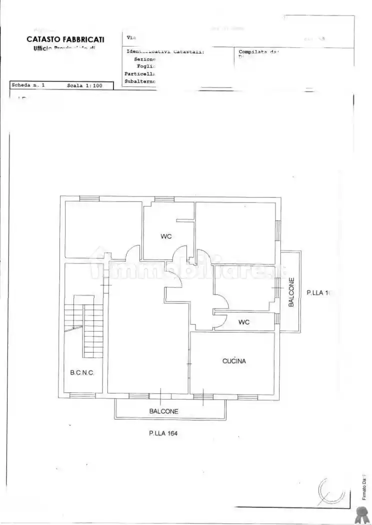
Villetta a schiera ai piani primo e secondo (sottotetto) con annessa corte esclusiva, composta da cucina e soggiorno oltre ad un bagno e 2 vani letto; in zona retrostante, vi è un cortile interno esclusivo oltre a garage di pertinenza.

Valore commerciale da stima: Euro 142.900
Base D'Asta: Euro 127.150
Offerta Minima in asta: Euro 95.363
Rilancio minimo in asta: Euro 3.000

Le foto pubblicate potrebbero non corrispondere all'immobile specifico, ma solo all'identificazione della zona; l'esattezza di tutti i dati pubblicati sarà confermata in sede di consulenza.

Acquista in asta giudiziaria con la massima tranquillità e trasparenza, affidandoti a professionisti del settore, ti offriremo un servizio All-inclusive chiavi in mano.

* Annuncio finalizzato alla vendita del servizio di consulenza ed assistenza legale, gratuito in caso di mancata aggiudicazione dell' Asta Immobiliare!
Trattasi di vendita pubblica alla quale è possibile partecipare personalmente o tramite il nostro Avvocato.

Contattaci subito per ricevere informazioni e per prenotare la visita all'immobile!

VISITA IL NOSTRO SITO: asteadvisor.com
SEGUICI SU FACEBOOK: Asteadvisor
SEGUICI SU INSTAGRAM: Asteadvisor Group
SEGUICI SU YOUTUBE: @lucacavanna9526

Caratteristiche

Piano T
Ascensore No
Stato Buono / Abitabile
Riscaldamento Autonomo, a radiatori, alimentato a metano

Servizi e accessori

Cucina Esposizione doppia Impianto tv singolo

Posizione

Referente

Asteadvisor Bra

Storico

Pubblicato 18 Mar 2026
Disattivato 13 May 2026
Sul mercato 63 giorni
ID Annuncio 127523088

Recensioni

Vedi tutte
F

Fabiana Corsi

4.7

Ho trovato l’agenzia davvero fantastica! Sono stata seguita con grande professionalità e competenza in tutta la trattativa, il che mi ha dato molta serenità. La loro serietà e attenzione ai dettagli m...

E

Elisa Cirillo

4.3

Appena ho incontrato l’agente, ho apprezzato subito la sua attenzione ai dettagli e la capacità di ascoltare. È stata molto professionale e efficiente nella gestione di tutte le pratiche burocratiche,...

R

Roberta Damiani

4.3

Ho appena venduto la mia casa e sono davvero felice del risultato. Sono stata seguita con tanta attenzione e trovarla è stato molto più semplice grazie all’ampia scelta di immobili disponibili. Inoltr...

G

Gloria Di Maio

4.3

Se state cercando un'agenzia immobiliare che sappia ascoltare e capire veramente le vostre esigenze, vi consiglio di rivolgervi a questa. Sono stata molto soddisfatta perché mi hanno seguita passo dop...