Vendita Appartamento

Appartamento

Via Cesare Abba, 48, Catania, Catania

Prezzo
Ottimo Affare: 43% sotto la media
95
mq
3
Locali
2
Camere
1
Bagni

Recensisci questo Immobile

Devi essere registrato per lasciare una recensione.

Accedi

Nessuna recensione ancora. Sii il primo!

Descrizione

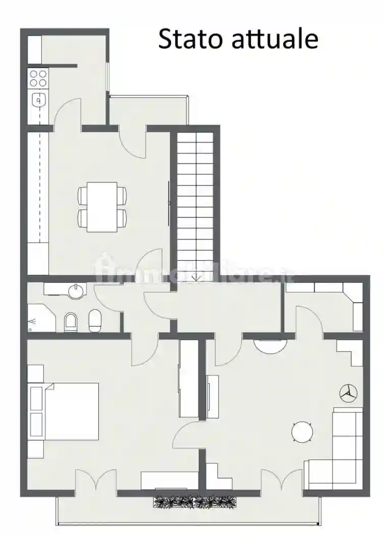
Immobile in vendita a Catania, in via Cesare Abba, nel cuore della zona turistica del Fortino. Questo appartamento di 95 mq è l'ideale per chi cerca un investimento o un progetto di ristrutturazione.

L'immobile, da ristrutturare, si compone di:
- Ingresso su disimpegno
- Ripostiglio
- WC
- Cucinotto
- soggiorno
- 2 ampie camere

La posizione è perfetta per un B&B o un affitto turistico, grazie alla vicinanza ai principali punti di interesse della città. Con un po' di creatività e un progetto di ristrutturazione, potrai trasformare questo spazio in un'oasi accogliente e redditizia.

Non perdere l'opportunità di investire in una delle zone più ambite di Catania. Contattaci per una visita e scoprire come questo immobile può diventare il tuo prossimo progetto di successo.

Caratteristiche

Piano 1
Ascensore No
Stato Da ristrutturare

Servizi e accessori

Esposizione esterna

Posizione

Zona: Palestro (Ferrarotto, Palestro, Calcare)

Referente

Living Re Network Immobiliare

Storico

Pubblicato 17 Mar 2026
Aggiornato 04 Apr 2026
Sul mercato 20 giorni
ID Annuncio 127547298

Recensioni

Vedi tutte
G

Guido Benedetti

4.7

Quello che mi ha convinto a scegliere questa agenzia è stata la loro conoscenza approfondita del mercato locale e il loro approccio caloroso e professionale. Mi hanno accompagnato con calma e competen...

P

Pina Guglielmi

4.3

Appena ho visto le foto degli appartamenti con vista mare, sono rimasta colpita dalla bellezza e dalla luce che filtrava. Mi sono sentita subito seguita con grande professionalità e disponibilità, ris...

G

Greta Russo

4.0

Grazie di cuore per avermi aiutata a trovare il mio angolo di tranquillità a Catania! Mi sono trovata subito bene perché hanno ascoltato attentamente le mie esigenze e sono state davvero gentili e dis...