Vendita Appartamento

Appartamento

Via San Protasio, 7, Solza, Bergamo

Prezzo
Ottimo Affare: 25% sotto la media
94
mq
3
Locali
2
Camere
1
Bagni

Recensisci questo Immobile

Devi essere registrato per lasciare una recensione.

Accedi

Nessuna recensione ancora. Sii il primo!

Descrizione

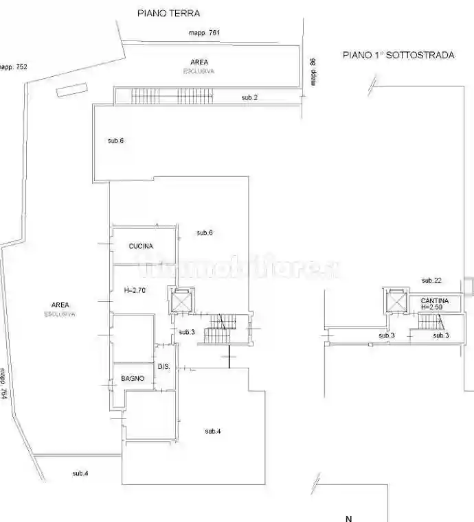
Appartamento IN ASTA ubicato al piano terra, composto da ingresso, cucina, soggiorno, disimpegno, due camere e un bagno, con annessa area giardino e cantina al piano interrato.

NEOVIT è uno studio di consulenza che accompagna il cliente in tutto il percorso relativo all'acquisto tramite asta giudiziaria, compresa l'assistenza per le nuove procedure TELEMATICHE;
l'immobile viene venduto dal tribunale e il prezzo indicato si riferisce all'offerta minima.

I nostri servizi comprendono anche le operazioni di SALDO e STRALCIO (su richiesta specifica del cliente),oltre ad eventuale assistenza per l'ottenimento di un mutuo finalizzato all'acquisto in asta.

Contattaci per fissare un appuntamento per avere tutte le informazioni necessarie.

NB: eventuali fotografie esterne sono rappresentative dell'area e non è garantito che siano specifiche del lotto in oggetto.

Caratteristiche

Piano T
Ascensore No
Stato Buono / Abitabile
Riscaldamento Autonomo, a radiatori, alimentato a metano

Servizi e accessori

Cucina Esposizione interna Impianto tv centralizzato Infissi esterni in doppio vetro / legno

Posizione

Referente

Neovit consulting Monza Brianza

Storico

Pubblicato 19 Mar 2026
Aggiornato 05 Apr 2026
Sul mercato 18 giorni
ID Annuncio 127557654

Recensioni

Vedi tutte
R

Renato Roversi

5.0

Ho trovato l’appartamento perfetto in breve tempo grazie all’agenzia, che si è dimostrata molto disponibile e competente, spiegandomi anche tutte le normative relative all’affitto. Sono stato molto se...

A

Antonio Sanfilippo

4.7

Se state cercando un’agenzia immobiliare seria e affidabile, il mio consiglio è di rivolgersi a loro. Mi sono trasferito a Vimercate dopo la pensione e ho trovato nella loro gestione un grande support...

T

Tito Tagliaferri

4.7

Grazie mille per l'aiuto sempre tempestivo e le spiegazioni chiare. Ho trovato l’appartamento con vista mare che cercavo grazie alla loro professionalità e competenza. Sono stato molto soddisfatto del...