Indietro
Vendita Attico - Mansarda

Attico - Mansarda

Via dei Pescatori, Roma, Roma

Prezzo
Ottimo Affare: 32% sotto la media
80
mq
2
Locali
1
Camere
1
Bagni

Recensisci questo Immobile

Devi essere registrato per lasciare una recensione.

Accedi

Nessuna recensione ancora. Sii il primo!

Descrizione

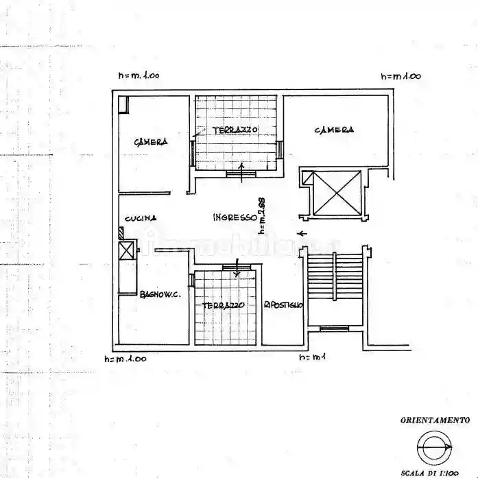
Nelle adiacenze di Piazza Eschilo in uno dei condomini più esclusivi del quartiere, proponiamo in vendita un appartamento luminosissimo tipo mansarda composto da: salone con cucinotto a vista, camera, bagno, ripostiglio e due terrazzi. L'immobile è una vera occasione ad uso investimento

Caratteristiche

Piano 5
Ascensore Si
Stato Da ristrutturare
Riscaldamento Centralizzato

Servizi e accessori

Esposizione esterna

Posizione

Zona: Axa (Axa, Casal Palocco, Infernetto)

Referente

Affiliato Toscano - Agenzia di Roma Axa Palocco

Storico

Pubblicato 01 Apr 2026
Aggiornato 08 Apr 2026
Sul mercato 7 giorni
ID Annuncio 127563776

Recensioni

Vedi tutte
M

Miriam Taddei

4.7

A differenza di altre esperienze che ho avuto in passato, questa volta mi sono trovata molto bene: l’agenzia è stata attenta, cortese e trasparente in ogni fase del processo. Sono stata seguita con pr...

O

Ornella Franco

4.7

Ho scelto questa agenzia perché mi è sembrata davvero professionale e affidabile. Sono stata molto soddisfatta del loro supporto durante tutto il processo, perché mi hanno aiutata a gestire con effici...

O

Oscar Bartoli

4.7

Grazie di cuore per l’assistenza impeccabile durante l’acquisto della mia prima casa. Ho trovato professionisti competenti e sempre pronti a seguirmi passo passo, anche dopo la chiusura, con un’ottima...